Uudet käyttö- ja sopimusehdot
Päivitämme käyttö- ja sopimusehtojamme. Uudet ehdot ovat voimassa 1.5.2025 alkaen. Tutustu ehtoihin
Merikasarminkatu 12 Katajanokka, Helsinki
00160Tyyppi
Liiketila
Koko
75 m²
Vuokra
Kysy hintaa!
Vuokrataan Katajanokan sydämestä katutason liiketilaa.
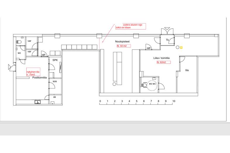
Tilan koko on n 75 m2 ja soveltuu liike-/toimistotilaksi. Tila voisi toimia myös ravintolatilana ( ei rasvakanavaa).
Tilaan voidaan yhdistää myös viereinen 50 m2 tila, ks pohjakuva.
Sijainti: Raitiovaunu 4 kääntöpaikalla.
Tiedustelut: p. 045 261 6555/Mika tai 020 7290 710
www.premises.fi
Kohteella ei ole lain edellyttämää energiatodistusta tai sitä ei ole saatavilla.
Perustiedot
Tyyppi:
Liiketila, Toimisto
Sopimustyyppi:
Vuokrataan
Osoite:
Merikasarminkatu 12, 00160 Helsinki
Kaupunginosa:
Katajanokka
Tilan koko
Kokonaispinta-ala:
75 m²
Tilan jakautuminen tilatyyppien mukaan
| Tilatyypit | Min m² | Max m² | €/m²/kk |
|---|---|---|---|
| Liiketila | 75 | ||
| Toimisto | 75 |
Kartta
Tietoa ilmoittajasta

CRE PREMISES
Näytä kaikki saman ilmoittajan kohteetVantaankoskentie 14
01670
VANTAA





