Uudet käyttö- ja sopimusehdot
Päivitämme käyttö- ja sopimusehtojamme. Uudet ehdot ovat voimassa 1.5.2025 alkaen. Tutustu ehtoihin
Juvelankatu 6 Tampere
33710Tyyppi
Tuotantotila
Koko
600 - 1 200 m²
Kerros
1
Vuokra
Kysy hintaa!
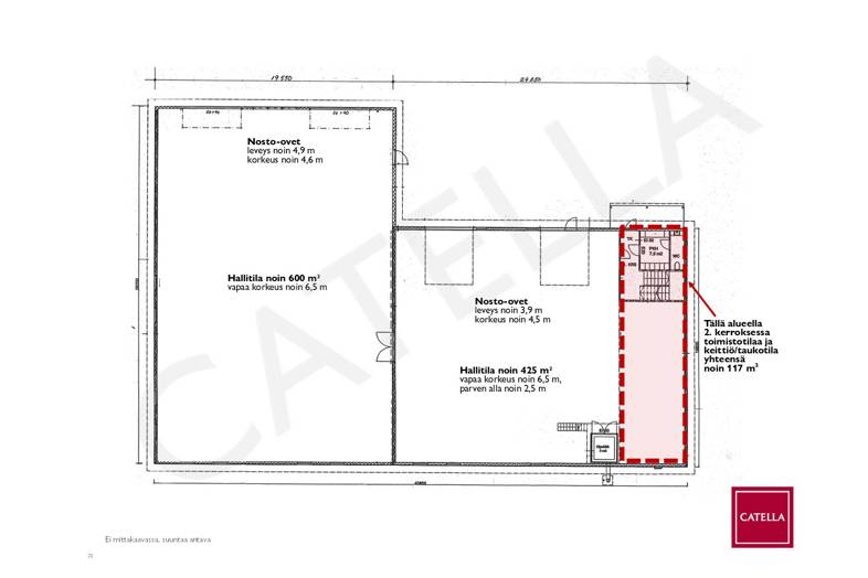
Vuokrataan noin 1200 m2 hallitilaa Vehmaisista Kangasalantien varrelta. Kokonaisuudesta korkeaa hallitilaa (vapaa korkeus noin 6,5 m) yhteensä noin 970 m2. 2. kerroksessa toimisto- ja taukotilaa noin 117 m2. ja 2. kerroksen alapuolella matalampaa tuotanto/varastotilaa sekä sosiaalitilat.
Tila jakautuu kahteen hallilohkoon joiden välillä on pariovet. Molempiin hallilohkoihin kaksi nosto-ovea. Ovien koot merkitty pohjakuvaan. Ei lattiakaivoja.
Yhteiskäytöllinen asfaltoitu piha-alue, jossa on määrätyt pysäköintipaikat vuokrattavalle toimitilalle.
Hyvä yhteys kehätielle ja julkiset yhteydet lähellä.
Tampereen keskustaan on noin 8 km.
Kysy lisää!
Perustiedot
Tyyppi:
Tuotantotila, Varastotila
Sopimustyyppi:
Vuokrataan
Osoite:
Juvelankatu 6, 33710 Tampere
Tilan koko
Kokonaispinta-ala:
1200 m²
Tilan jakautuminen tilatyyppien mukaan
| Tilatyypit | Min m² | Max m² | €/m²/kk |
|---|---|---|---|
| Tuotantotila | 600 | 1 200 | |
| Varastotila | 600 | 1 200 |
Lisätiedot
Kerros:
1
Tietoa ilmoittajasta

Catella Property Oy, Tampere
Näytä kaikki saman ilmoittajan kohteetHämeenkatu 13 b
33100
TAMPERE


























