<< Takaisin kohdesivulle
Sosiaali/neuvottelutila
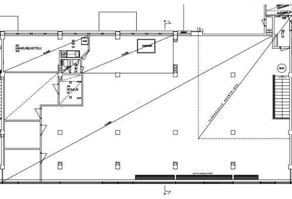
Yläkerta
Pohjaratkaisu
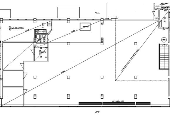
Pohjaratkaisu
Pohjaratkaisu
<< Takaisin kohdesivulle