Uudet käyttö- ja sopimusehdot
Päivitämme käyttö- ja sopimusehtojamme. Uudet ehdot ovat voimassa 1.5.2025 alkaen. Tutustu ehtoihin
Läntinen Teollisuuskatu 10 Juvanmalmi, Espoo
02920Tyyppi
Toimisto
Koko
680 m²
Kerros
1
Vuokra
Kysy hintaa!
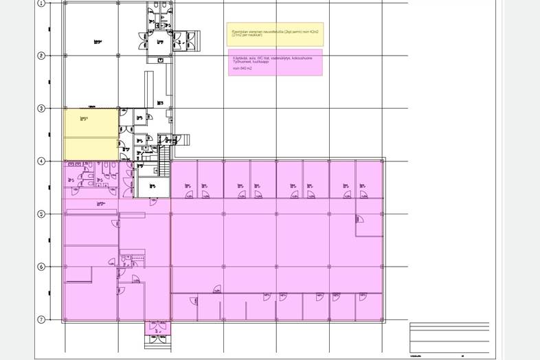
Vuokrattavana siistiä toimistotilaa 682m2, sisältäen n. 70m2 kellarissa sijaitsevan väetönsuojan, johon kulku sisäportaita pitkin. Tila koostuu toimistohuoneista ja monitilatoimistosta. Rakennuksessa toimii lounasravintola.
Rakennus on liitetty kaupungin vesijohto- ja viemäriverkostoon. Rakennuksessa on koneellinen ilmanvaihto (poisto ja puhallus).
Rakennuksen edessä on hyvin tarjolla autopaikkoja.
Lisätiedot 050 415 2127, lisää kohteita www.premises.fi
Kohteella ei ole lain edellyttämää energiatodistusta tai energialuokka ei tiedossa.
Perustiedot
Tyyppi:
Toimisto
Sopimustyyppi:
Vuokrataan
Osoite:
Läntinen Teollisuuskatu 10, 02920 Espoo
Kaupunginosa:
Juvanmalmi
Tilan koko
Kokonaispinta-ala:
680 m²
Lisätiedot
Kerros:
1
Kartta
Tietoa ilmoittajasta

CRE PREMISES
Näytä kaikki saman ilmoittajan kohteetVantaankoskentie 14
01670
VANTAA






















