Uudet käyttö- ja sopimusehdot
Päivitämme käyttö- ja sopimusehtojamme. Uudet ehdot ovat voimassa 1.5.2025 alkaen. Tutustu ehtoihin
Kalevankatu 28 Kamppi, Helsinki
00100Tyyppi
Toimisto
Koko
93 m²
Vuokra
Kysy hintaa!
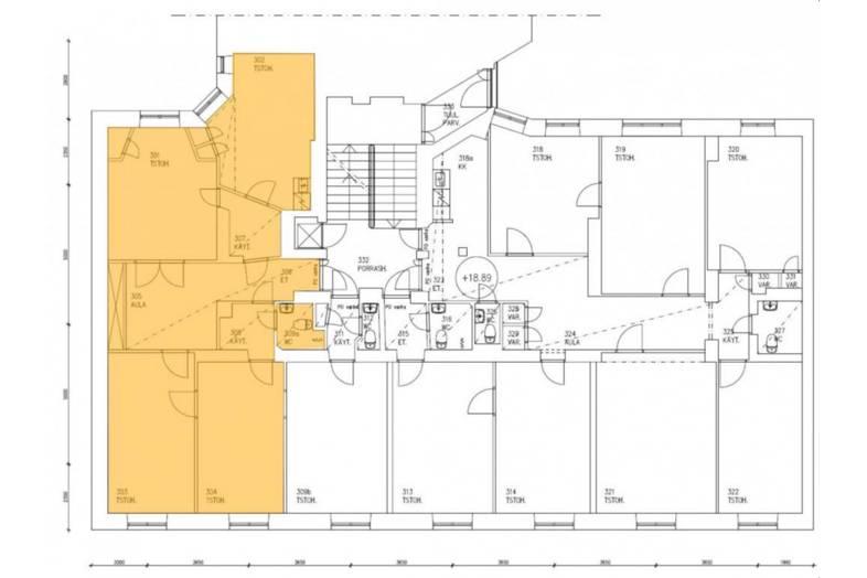
Vuokrataan hyväkuntoinen 3. kerroksen 93m2 toimistotila. Tilassa on kolme työhuonetta, keittiö ja wc. Kiinteistö sijaitsee erinomaisella paikalla Helsingin Kampissa. Kaikki keskustan palvelut lähietäisyydellä.
Kysy lisää. Jouko Raitanen, Helsinki puh. 0504695444.
Perustiedot
Tyyppi:
Toimisto
Sopimustyyppi:
Vuokrataan
Osoite:
Kalevankatu 28, 00100 Helsinki
Kaupunginosa:
Kamppi
Linkit
Kartta
Tietoa ilmoittajasta
Toimitilavälitys RHG Oy
Näytä kaikki saman ilmoittajan kohteetHämeenkatu 2 B20
20500
Turku












