Uudet käyttö- ja sopimusehdot
Päivitämme käyttö- ja sopimusehtojamme. Uudet ehdot ovat voimassa 1.5.2025 alkaen. Tutustu ehtoihin
Tammasaarenlaituri 3 Ruoholahti, Helsinki
00180Tyyppi
Toimisto
Koko
60 - 1 300 m²
Vuokra
Kysy hintaa!
Vuokrataan laadukasta toimistotilaa huippusijainnilla Ruoholahdesta
Vapaana laadukasta toimistotilaa huippusijainnilla Ruoholahdesta
Vapaat tilat:
- 60m² Katutasossa kompakti toimistotila isoilla ikkunoilla kadulle. Oma keittiö mutta yhteiskäyttöiset wc-tilat. Heti muuttovalmis toimisto.
- 350m² Vuokrattavana 5. kerroksessa toimistotila, jossa 5 huonetta, iso kokoushuone ja avotilaa.
- 202m² Viidennen kerroksen avotoimisto yhdellä isolla neuvotteluhuoneella B-rapussa.
- 275,5m² Kombitoimisto 4. kerroksessa B-rapussa. Valoisa toimisto, jossa kolme vetäytymistilaa/ toimistohuonetta sekä kaksi omaa neuvottelutilaa. Muuttovalmis tila.
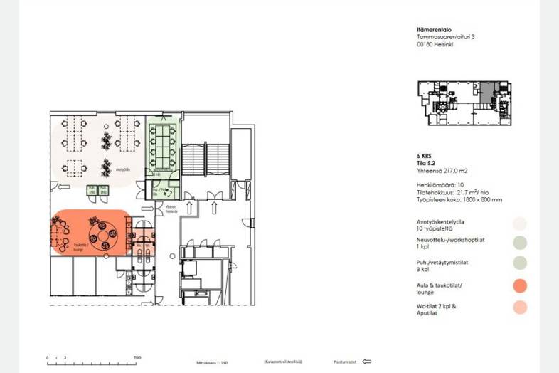
- 217m² Vapautumassa juuri merellisillä maisemilla oleva toimistotila, jossa 2 neuvotteluhuonetta/monitoimitilaa ja avotilaa. Oma keittiö ja wc:t. Muuttovalmis tila.
- 298m² Merellisillä maisemilla toimistotila, joka räätälöidään asiakkaan tarpeiden mukaan.
- 371,5m² Vuokrattavana avotila/showroomtilaa Ruoholahdessa. Tilat räätälöidään vuokralaisen tarpeiden mukaan.
- 1300m² Merellisillä maisemilla isolle yritykselle upeat toimistotilat. Tilat räätälöidään vuokralaisen toiveiden mukaan. Tila sopii erityisesti luovan alan toimijoille avokonttoriksi tai showroomtiloiksi. Tilasta sekä asiakashissi- että lastaushissiyhteydet.
Perustiedot
Tyyppi:
Toimisto
Sopimustyyppi:
Vuokrataan
Osoite:
Tammasaarenlaituri 3, 00180 Helsinki
Kaupunginosa:
Ruoholahti
Tilan koko
Kokonaispinta-ala:
1300 m²
Tilan jakautuminen tilatyyppien mukaan
| Tilatyypit | Min m² | Max m² | €/m²/kk |
|---|---|---|---|
| Toimisto | 60 | 1 300 |
Kartta
Ota yhteyttä
JK
Joakim Kukkonen
Osakas, Toimitilavälittäjä
Näytä puhelinnumero
SP
Seppo Pakarinen
Osakas, Kiinteistönvälittäjä. LKV, YKV, AKA
Näytä puhelinnumero
Tietoa ilmoittajasta
Arvo Premises Oy
Näytä kaikki saman ilmoittajan kohteetItälahdenkatu 2 a 20
00210
Helsinki




















