Uudet käyttö- ja sopimusehdot
Päivitämme käyttö- ja sopimusehtojamme. Uudet ehdot ovat voimassa 1.5.2025 alkaen. Tutustu ehtoihin
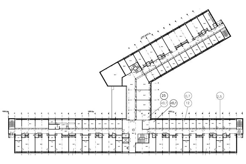
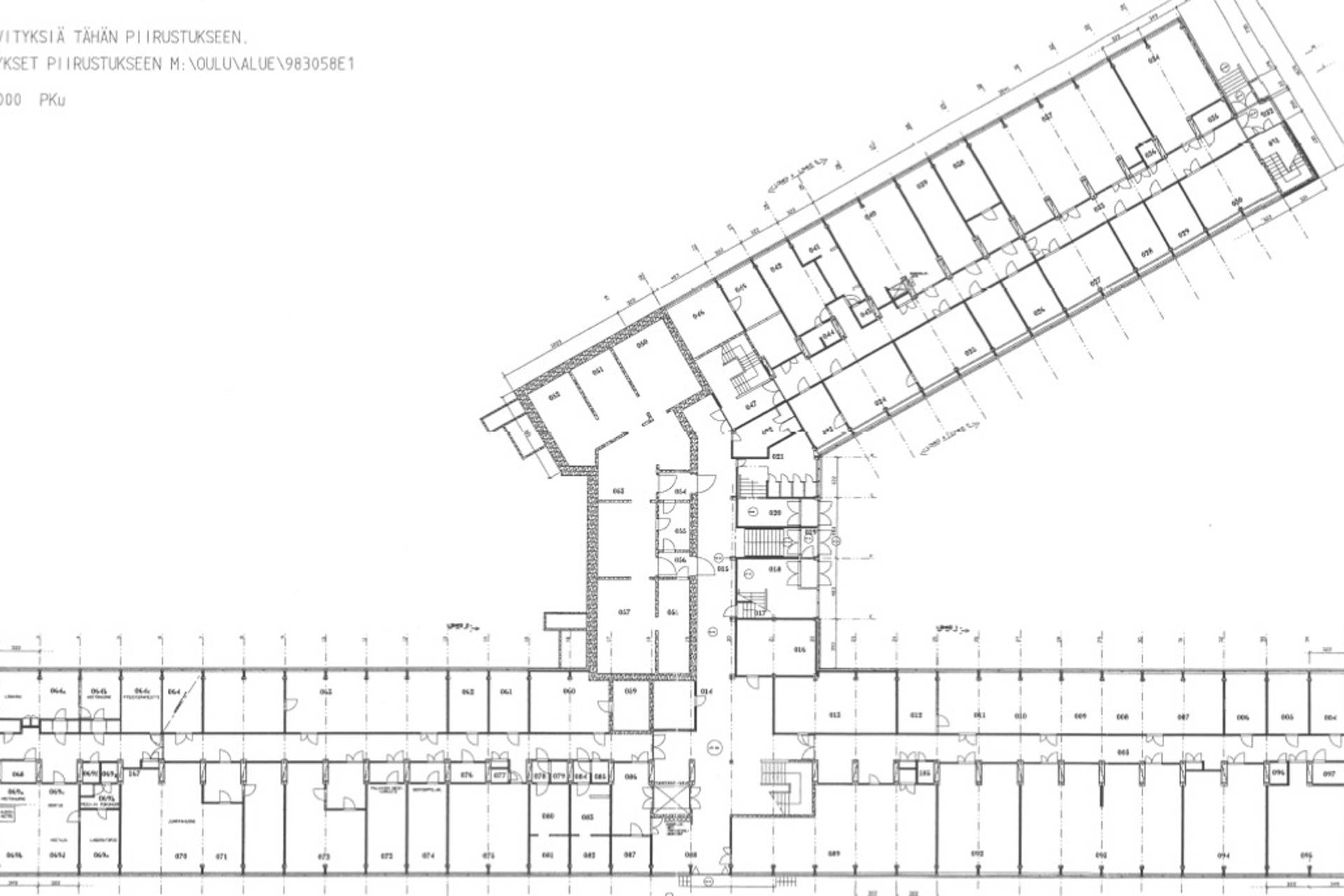
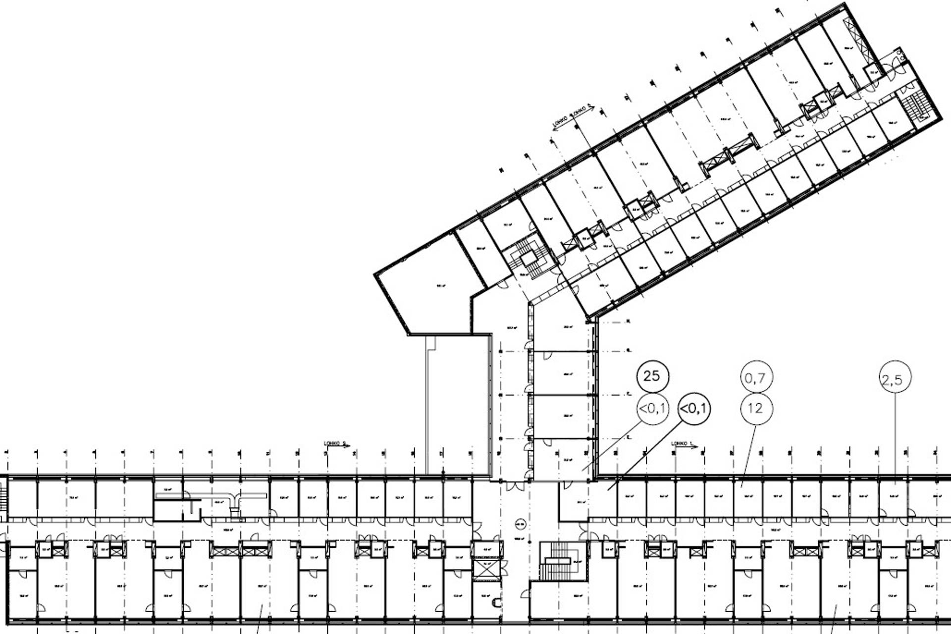
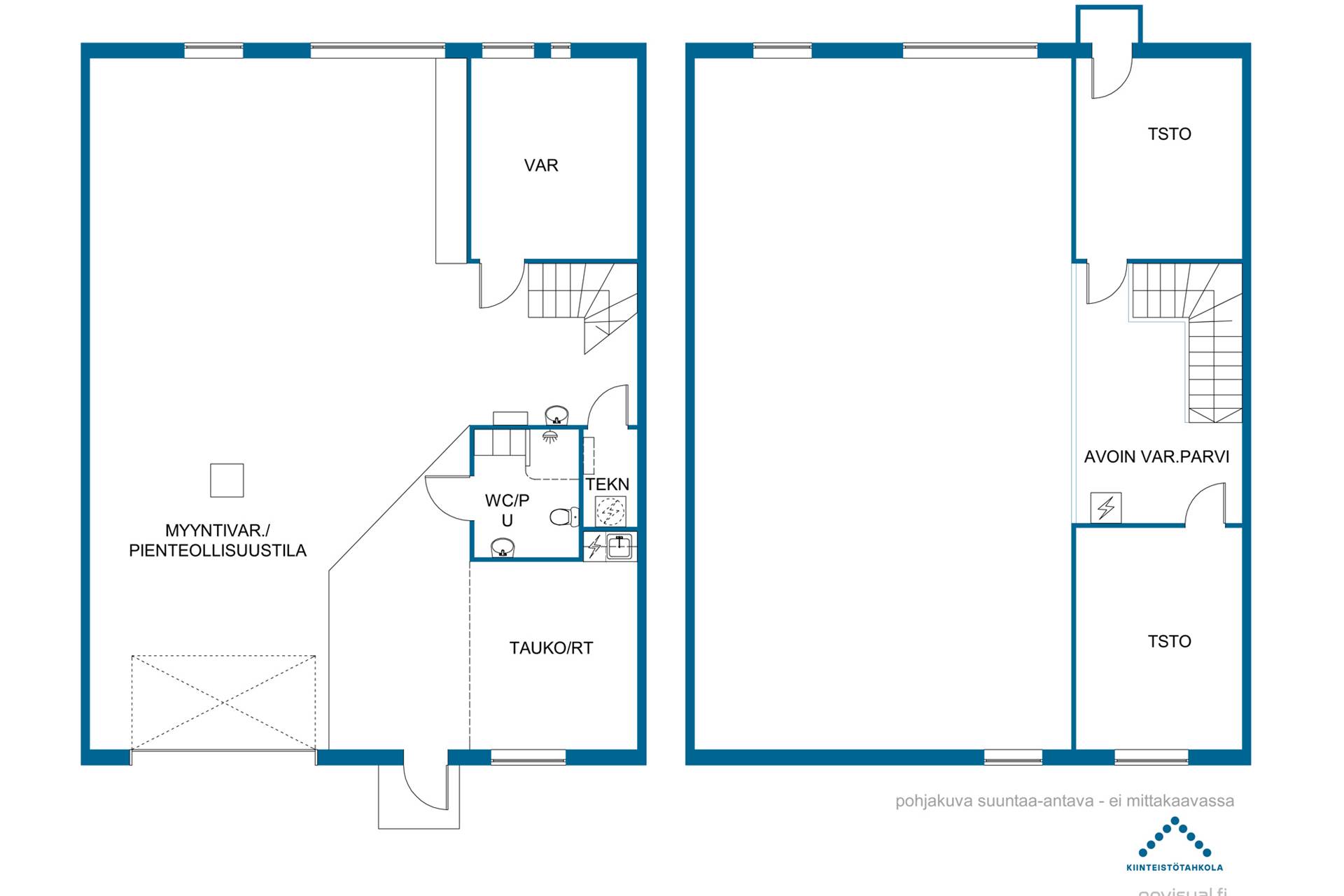
Typpitie 1 Laanila, Oulu
90620Tyyppi
Toimisto
Koko
30 - 504 m²
Vuokra
9 €/m²/kk
Saatavilla
Heti vapaa
Perustiedot
Tilan koko
Tilan jakautuminen tilatyyppien mukaan
| Tilatyypit | Min m² | Max m² | €/m²/kk |
|---|---|---|---|
| Toimisto | 30 | 504 |
Rakennustiedot
Lisätiedot
Kartta
Tietoa ilmoittajasta
Kiinteistö-Tahkola Oulu Oy
Näytä kaikki saman ilmoittajan kohteetLumijoentie 1
90400
Oulu
Kiinteistötahkola Toimitilapalvelut tarjoaa kiinteistöjen omistajille palvelut yksittäisistä vuokrauksista aina kokonaisvaltaiseen manageeraukseen. Olemme vahvasti läsnä paikallisilla markkinoilla ja tunnemme kunkin alueen toimijoiden tarpeet ja erityispiirteet. Hyödynnämme myös valtakunnalliset kontaktiverkostomme niin toimitilojen tarvitsijoiden kuin tarjoajienkin etsinnässä. Tarjoamme toimitilapalvelujen lisäksi isännöintiä, asuntovuokraus- ja kiinteistönvälityspalveluita. Myyntikohteet löydät osoitteesta: toimitilat.kauppalehti.fi/Ilmoittaja/36899













































