<< Takaisin kohdesivulle
Varastotila
Varastotila
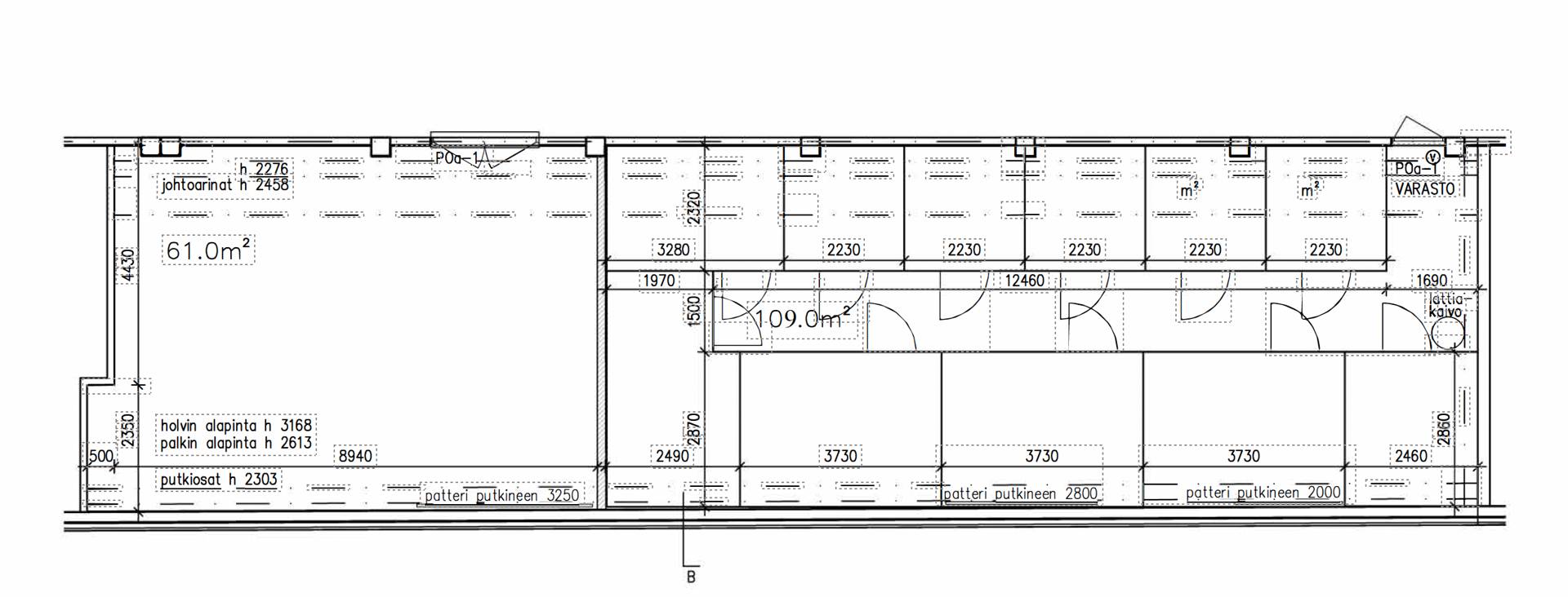
Varastotila 170m2 pohjakuva
Kivikukkaro - Turun kivin kiinteistö
<< Takaisin kohdesivulle