Uudet käyttö- ja sopimusehdot
Päivitämme käyttö- ja sopimusehtojamme. Uudet ehdot ovat voimassa 1.5.2025 alkaen. Tutustu ehtoihin
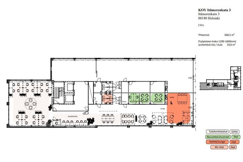
Itämerenkatu 3 Ruoholahti, Helsinki
00180Tyyppi
Toimisto
Koko
368 m²
Kerros
2
Vuokra
Kysy hintaa!
Vuokrattavana 2. kerroksen valoista 368 m² toimistotila, joka on mahdollista räätälöidä toiveiden mukaisesti.
Kiinteistöllä on LEED Gold -sertifikaatti ja se käyttää uusiutuvaa kierolämpöä ja kotimaista
tuulisähköä. Kiinteistössä on aulapalvelu, neuvottelutiloja, POOL-joustotilat, kuntosali, suihkulliset sosiaalitilat, lounasravintola ja parkkihalli, jossa on sähköautojen latauspisteitä.
Kiinteistö sijaitsee Ruoholahden palveluiden äärellä ja loistavien kulkuyhteyksien varrella niin julkisilla kulkuvälineillä kuin omalla autollakin.
Perustiedot
Tyyppi:
Toimisto
Sopimustyyppi:
Vuokrataan
Osoite:
Itämerenkatu 3, 00180 Helsinki
Kaupunginosa:
Ruoholahti
Tilan koko
Kokonaispinta-ala:
368 m²
Rakennustiedot
Kiinteistön nimi:
Kiinteistö Oy Itämerenkatu 3
Lisätiedot
Kerros:
2
Kartta
Tietoa ilmoittajasta
Toimitilavuokraus | Retta Management
Näytä kaikki saman ilmoittajan kohteetValimotie 9-11
00380
Helsinki


















