Uudet käyttö- ja sopimusehdot
Päivitämme käyttö- ja sopimusehtojamme. Uudet ehdot ovat voimassa 1.5.2025 alkaen. Tutustu ehtoihin
Kivikonkierto 13 Hyvinkää
05800Tyyppi
Varastotila
Koko
537 m²
Vuokra
7,59 €/m²/kk
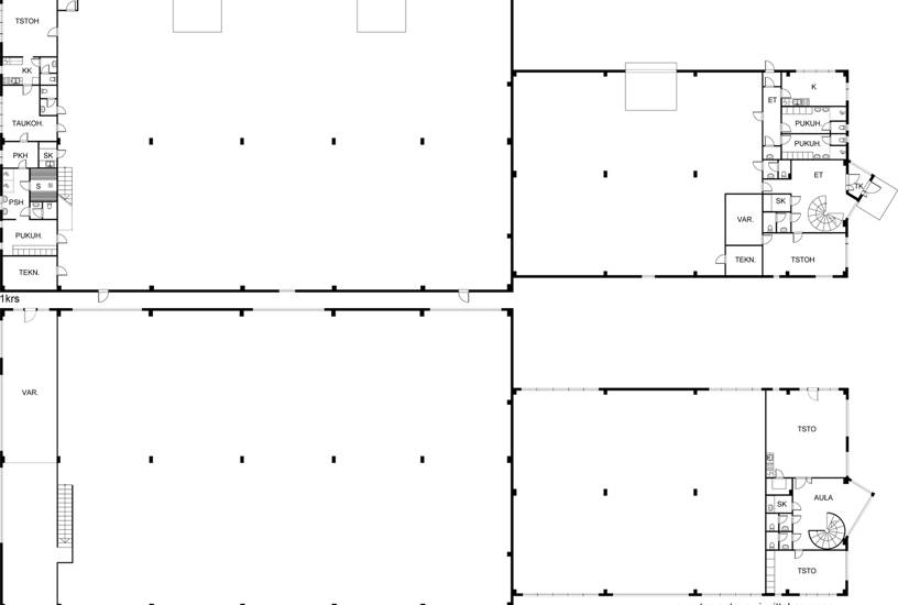
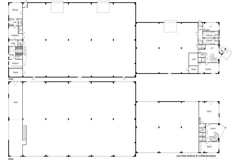
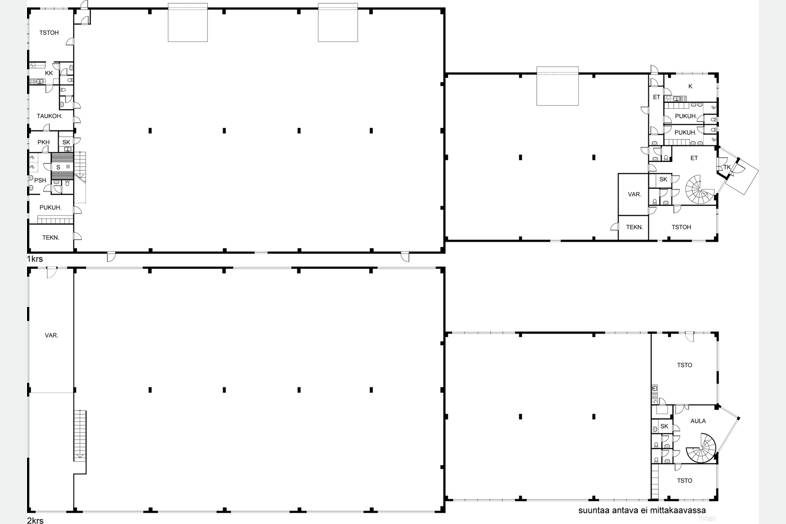
Toimisto- ja hallitilat hyvien kulkuyhteyksien varrelta. Helsinki-Tampere moottoritielle n. 7km ja Hangonväylälle n. 1km.
Toimistotilat noin 200m², hallitila noin 300m².
Lämmitys puhaltimin, kaukolämpö.
Lisätiedot ja esittelyt Jussi Hannukkala, p.0400363025. jussi.hannukkala@johacon.fi
Perustiedot
Tyyppi:
Varastotila
Sopimustyyppi:
Vuokrataan
Osoite:
Kivikonkierto 13, 05800 Hyvinkää
Vuokra:
7,59 €/m²/kk
Tilan koko
Kokonaispinta-ala:
537 m²
Rakennustiedot
Rakennusvuosi:
1992
Kartta
Tietoa ilmoittajasta
JOHACON LKV
Näytä kaikki saman ilmoittajan kohteetRiihimäenkatu 2
05900
HYVINKÄÄ














