Uudet käyttö- ja sopimusehdot
Päivitämme käyttö- ja sopimusehtojamme. Uudet ehdot ovat voimassa 1.5.2025 alkaen. Tutustu ehtoihin
Rautatienkatu 21 Kyttälä, Tampere
33100Tyyppi
Toimisto
Koko
4 000 m²
Vuokra
Kysy hintaa!
Tampereen rautatieaseman vieressä sijaitseva Postitalo uudistuu täysin laajamittaisen saneerauksen myötä. Uudet toimitilat tulevat vastaamaan modernin työelämän tarpeita. Tilat ovat avaria ja joustavat muuttuvien tarpeiden mukaan, talotekniikka on nykyaikainen sekä sijainti mitä loistavin kaupungin keskustassa. Kiinteistön asiakkaat voivat hyödyntää toimistojensa tilasuunnittelussa Postitalon identiteettiin ja ympäröivän alueen henkeen nojautuvia valmiita designteemoja. Kiinteistössä tarjotut palvelut tulevat tarkentumaan hankkeen edetessä.
Uudistuneeseen Postitaloon haetaan parhaillaan ensimmäisiä vuokralaisia. Tilakokoja on tarjolla 2 000 ja 5 000 m2 väliltä. Juuri nyt on paras hetki vaikuttaa uuden toimiston kokoon, kerrossijaintiin ja designiin. Saneerauksen myötä kiinteistölle tavoitellaan korkeatasoista ympäristösertifikaattia. Uusiin toimitiloihin päästään muuttamaan arviolta H1/2026 aikana.
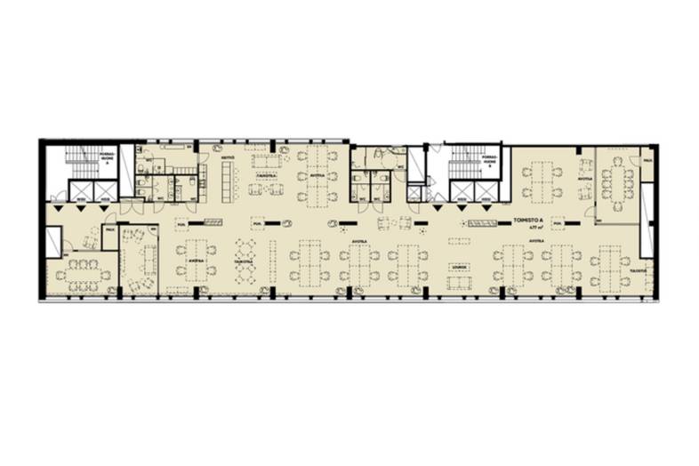
Kuvat ovat visualisointeja tulevasta kiinteistöstä. Visualisoinneissa esiintyy sisustusarkkitehtuurin ammattilaisten luomat design-teemat, joita on mahdollista hyödyntää toimistojen tilasuunnittelussa. Kalustettu pohjakuva on esimerkkipohja 8. kerrokseen sovitetusta tilasta 477,5 m2. Visualisoinnit eivät ole kuvauksia yksityiskohdista tai väreistä.
Lisätiedot ja kohde-esittelyt 020 7290 710, lisää kohteita premises.fi
Kohteella ei ole lain edellyttämää energiatodistusta tai energialuokka ei tiedossa.
Perustiedot
Tyyppi:
Toimisto
Sopimustyyppi:
Vuokrataan
Osoite:
Rautatienkatu 21, 33100 Tampere
Kaupunginosa:
Kyttälä
Tilan koko
Kokonaispinta-ala:
4000 m²
Kartta
Tietoa ilmoittajasta

CRE PREMISES
Näytä kaikki saman ilmoittajan kohteetVantaankoskentie 14
01670
VANTAA












