Uudet käyttö- ja sopimusehdot
Päivitämme käyttö- ja sopimusehtojamme. Uudet ehdot ovat voimassa 1.5.2025 alkaen. Tutustu ehtoihin
<< Takaisin kohdesivulle

Julkisivu

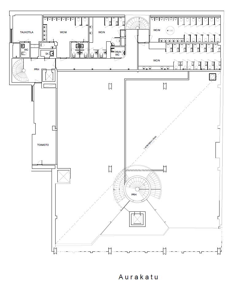
Pohjaratkaisu, 2. kerros.

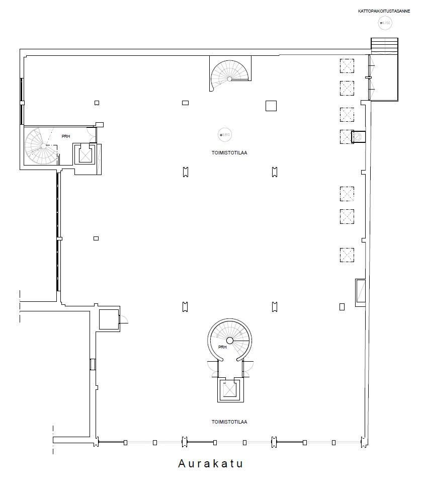
Pohjaratkaisu, välikerros

Sisääntuloaula

Referenssikuva remontoidusta toimistosta

Referenssikuva remontoidusta toimistosta

Referenssikuva remontoidusta toimistosta

Referenssikuva remontoidusta toimistosta

Referenssikuva remontoidusta toimistosta

Julkisivu
<< Takaisin kohdesivulle