Uudet käyttö- ja sopimusehdot
Päivitämme käyttö- ja sopimusehtojamme. Uudet ehdot ovat voimassa 1.5.2025 alkaen. Tutustu ehtoihin
Silkkitehtaantie 5 Tikkurila, Vantaa
01300Tyyppi
Toimisto
Koko
165 m²
Vuokra
Kysy hintaa!
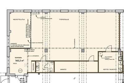
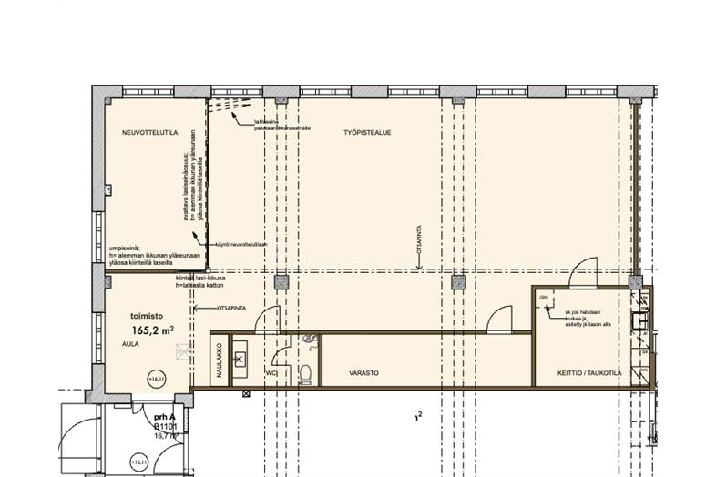
SILKKITEHTAANTIE 5 - toimistotila 165m2
Upea selkeälinjainen avotoimistotila Silkin Konttorin ensimmäisestä kerroksesta.
Tästä näyttävästä toimistotilasta löytyy lasitettu neuvottelutila, ruokailutila design-keittiöllä, pieni varasto ja kaunis wc-tila. Isot ruutuikkunat ja hulppea huonekorkeus antavat tilasta ilmavan, valoisan ja kokoaan suuremman vaikutelman. Tämä industrial-henkinen tila on myös jäähdytetty.
Lisätiedot ja kohdenäytöt: p. 040 7070 321 / Heikki
Perustiedot
Tyyppi:
Toimisto
Sopimustyyppi:
Vuokrataan
Osoite:
Silkkitehtaantie 5, 01300 Vantaa
Kaupunginosa:
Tikkurila
Tilan koko
Kokonaispinta-ala:
165 m²
Ympäristö
Liikenneyhteydet:
Tikkurilan asema: 750 m -
Bussipysäkki: 300 m (571/611) - 650 m (999) -
Autolla Kehä-III: 900 m
Kartta
Tietoa ilmoittajasta

CRE PREMISES
Näytä kaikki saman ilmoittajan kohteetVantaankoskentie 14
01670
VANTAA


































