Uudet käyttö- ja sopimusehdot
Päivitämme käyttö- ja sopimusehtojamme. Uudet ehdot ovat voimassa 1.5.2025 alkaen. Tutustu ehtoihin
Silkkitehtaantie 5 Tikkurila, Vantaa
01300Tyyppi
Toimisto
Koko
178 m²
Vuokra
Kysy hintaa!
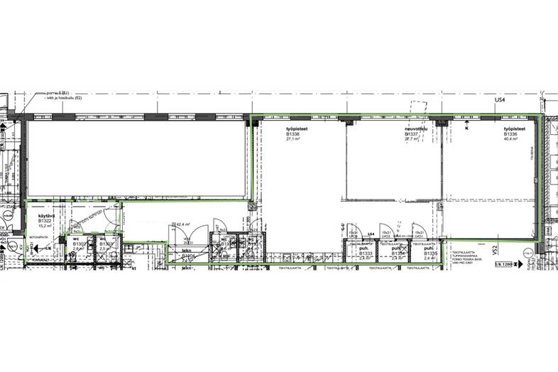
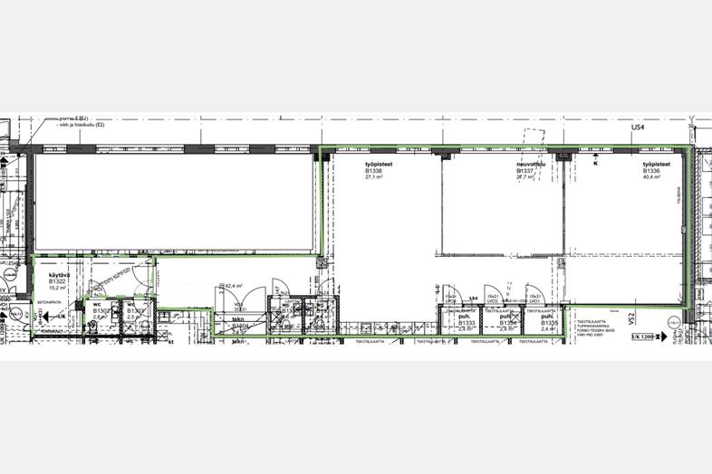
SILKKITEHTAANTIE 5 - toimisto 178m2
Upea selkeälinjainen kombi-toimistotila Silkin Konttorin ensimmäisestä kerroksesta. Tila sijaitsee pääsisäänkäynnin yhteydessä, josta käynti jaetun odotustilan kautta.
Tästä näyttävästä toimistotilasta löytyy lasitettu suuri neuvottelutila, 2 avotilaa, 3 puhelukoppia ja 2 kaunista wc-tilaa. Isot ruutuikkunat, hulppea huonekorkeus lasituksineen antavat tilasta ilmavan, valoisan ja kokoaan suuremman vaikutelman. Tämä industrial-henkinen tila on myös jäähdytetty.
Lisätiedot ja kohdenäytöt: p. 040 7070 321 / Heikki
Perustiedot
Tyyppi:
Toimisto
Sopimustyyppi:
Vuokrataan
Osoite:
Silkkitehtaantie 5, 01300 Vantaa
Kaupunginosa:
Tikkurila
Tilan koko
Kokonaispinta-ala:
178 m²
Ympäristö
Liikenneyhteydet:
Tikkurilan asema: 750 m -
Bussipysäkki: 300 m (571/611) - 650 m (999) -
Autolla Kehä-III: 900 m
Kartta
Tietoa ilmoittajasta

CRE PREMISES
Näytä kaikki saman ilmoittajan kohteetVantaankoskentie 14
01670
VANTAA




































