Uudet käyttö- ja sopimusehdot
Päivitämme käyttö- ja sopimusehtojamme. Uudet ehdot ovat voimassa 1.5.2025 alkaen. Tutustu ehtoihin
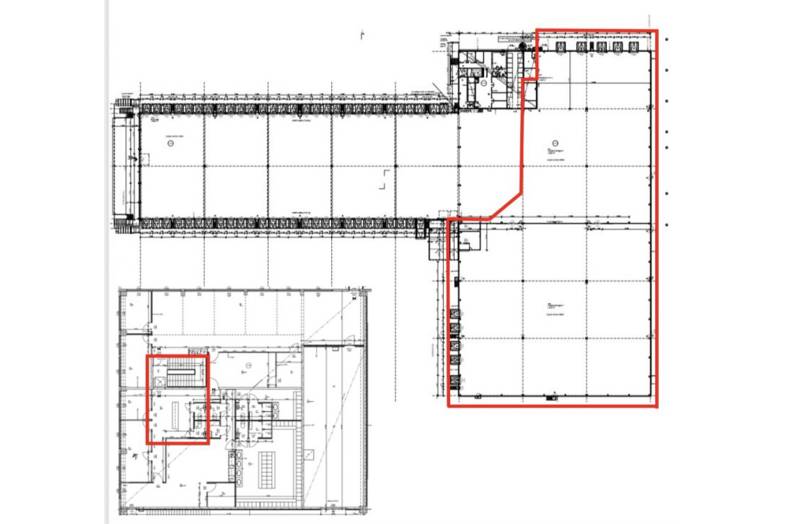
Makasiinikatu 3 Lahti
15150Tyyppi
Tuotantotila
Koko
7 670 m²
Vuokra
Kysy hintaa!
1.5.2024 Vapautuvaa 9.5 m korkeaa varastoa, johon 10 lastaustaskua.
Varasto on valmiiksi hyllytettyä. Tiloissa valmiina pienet toimisto-/tauko sekä sosiaalitilat. Piha asfaltoitu ja aidattu.
Kysy lisää!
Perustiedot
Tyyppi:
Tuotantotila, Varastotila
Sopimustyyppi:
Vuokrataan
Osoite:
Makasiinikatu 3, 15150 Lahti
Tilan koko
Kokonaispinta-ala:
7670 m²
Tilan jakautuminen tilatyyppien mukaan
| Tilatyypit | Min m² | Max m² | €/m²/kk |
|---|---|---|---|
| Tuotantotila | 7 670 | ||
| Varastotila | 7 670 |
Rakennustiedot
Energialuokka:
Ei lain edellyttämää energiatodistusta
Kartta
Tietoa ilmoittajasta
Comreal Oy
Näytä kaikki saman ilmoittajan kohteetLäkkisepänkuja 6
00620
Helsinki





