Uudet käyttö- ja sopimusehdot
Päivitämme käyttö- ja sopimusehtojamme. Uudet ehdot ovat voimassa 1.5.2025 alkaen. Tutustu ehtoihin
Hämeenkatu 9 Lahti
15110Tyyppi
Toimisto
Koko
337 m²
Kerros
4
Vuokra
Kysy hintaa!
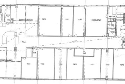
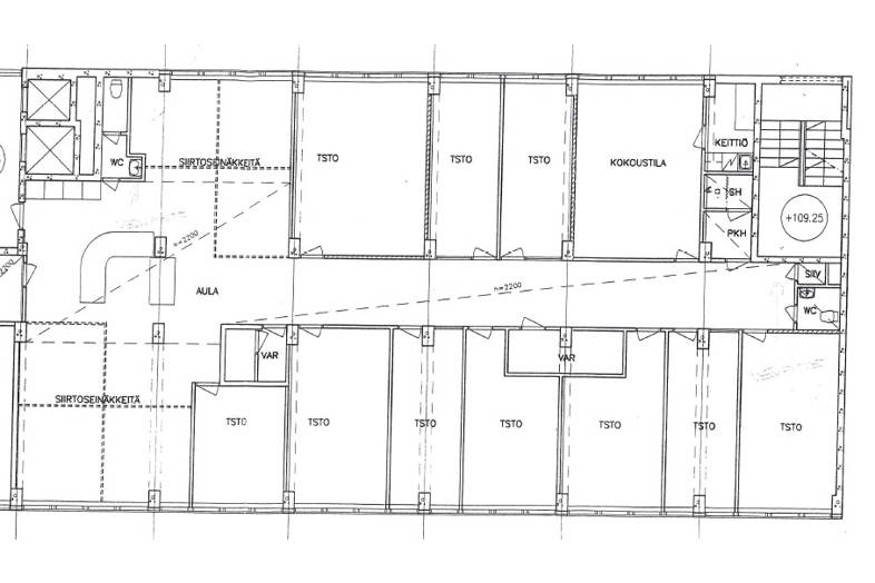
Keskeisellä sijainnilla Lahdessa oleva siisti kombitoimisto kiinteistön 4 kerroksessa. Tilassa 11 erikokoista toimistoa, avoimisto/neukkari tila, pieni vastaanottotiskin takana oleva sosliaalitila. Tilassa on 3 wc tilaa ( yksi inva wc), suihkutila, siivouskomero. Osa toimistojen välisistä seinistä on kevytseiniä ja osa kiinteitä seiniä. Voidaan vuokrata myös alv verottomalle toimijalle. Tilaan on kaksi erillistä sisäänkäyntiä kahdesta eri porraskäytävästä.
Lisätiedot ja esittely kohteesta 0400891057
Lisää kohteita www.premises.fi
Perustiedot
Tyyppi:
Toimisto
Sopimustyyppi:
Vuokrataan
Osoite:
Hämeenkatu 9, 15110 Lahti
Tilan koko
Kokonaispinta-ala:
337 m²
Lisätiedot
Kerros:
4
Kartta
Tietoa ilmoittajasta

CRE PREMISES
Näytä kaikki saman ilmoittajan kohteetVantaankoskentie 14
01670
VANTAA














