Uudet käyttö- ja sopimusehdot
Päivitämme käyttö- ja sopimusehtojamme. Uudet ehdot ovat voimassa 1.5.2025 alkaen. Tutustu ehtoihin
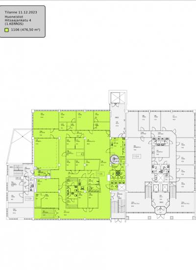
Hitsaajankatu 4 Herttoniemi, Helsinki
00810Tyyppi
Toimisto
Koko
476 m²
Vuokra
Kysy hintaa!
Vuokrataan hyvätasoinen ja siisti ensimmäisen kerroksen 476,5m2 toimistotila Herttoniemen metroaseman läheisyydessä. Tila koostuu useista toimistohuoneista, ja se sisältää neuvotteluhuoneita, tilavan keittiön ja ruokailutilan, pukuhuoneen ja suihkun sekä askarteluun ja lepohuoneiksi soveltuvat huoneet. Tila on muunneltavissa käyttäjän tarpeiden mukaan.
Kysy lisää Jouko Raitanen Helsinki puh. 0504695444
Kysy lisää Jouko Raitanen Helsinki puh. 0504695444
Perustiedot
Tyyppi:
Toimisto
Sopimustyyppi:
Vuokrataan
Osoite:
Hitsaajankatu 4, 00810 Helsinki
Kaupunginosa:
Herttoniemi
Linkit
Kartta
Tietoa ilmoittajasta
Toimitilavälitys RHG Oy
Näytä kaikki saman ilmoittajan kohteetHämeenkatu 2 B20
20500
Turku





