Uudet käyttö- ja sopimusehdot
Päivitämme käyttö- ja sopimusehtojamme. Uudet ehdot ovat voimassa 1.5.2025 alkaen. Tutustu ehtoihin
Vuokrattavana 2 100m2 toimitila, upeassa vanhassa arvotalossa, Turun aurajokirannan läheisyydessä, osoitteessa Olavintie 2, Turku.
Vuokrattavana 707m2- 4 000m2 toimistotila, entisestä Veritaksen pääkonttorista. Hieno sijainti Aurajoen vierestä ja upeat näkymät keskustaan ylimmiltä kerroksilta. Vuokrattavana on kerrokset 1-6 ja yhdessä kerroksessa on tilaa n. 700m2.
I-kerros soveltuu myös esim. asiakaspalvelu-tyyppiseen toimintaan.
Tilat vuokrattavissa kerros kerrallaan tai niin monta kerrosta, kun on tarvetta. Kerros on tarvittaessa myös jaettavissa kahdelle eri käyttäjälle.
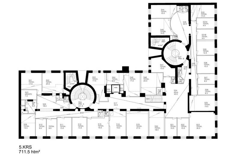
Jokainen kerros on tilaratkaisultaan toisiltaan hiukan erilainen. Kerrokset ovat tällä hetkellä pääsääntöisesti huoneisiin jaettuja, mutta tilat voidaan muokata käyttäjien tarpeiden mukaisiksi.
Koko kiinteistön käytössä on yhteensä n. 20 autopaikkaa parkkihallissa tai pihalla.
Kysy lisätietoja
Tilat ovat heti vapaat.
Ei lain edellyttämää e-todistusta.
Lisää toimitiloja www.rhg.fi
Perustiedot
Tyyppi:
Toimisto
Sopimustyyppi:
Vuokrataan
Osoite:
Olavintie 2, 20700 Turku
Linkit
Kartta
Tietoa ilmoittajasta
Toimitilavälitys RHG Oy
Näytä kaikki saman ilmoittajan kohteetHämeenkatu 2 B20
20500
Turku


























































