Uudet käyttö- ja sopimusehdot
Päivitämme käyttö- ja sopimusehtojamme. Uudet ehdot ovat voimassa 1.5.2025 alkaen. Tutustu ehtoihin
Asentajankatu 8 Länsikeskus, Turku
20320Tyyppi
Liiketila
Koko
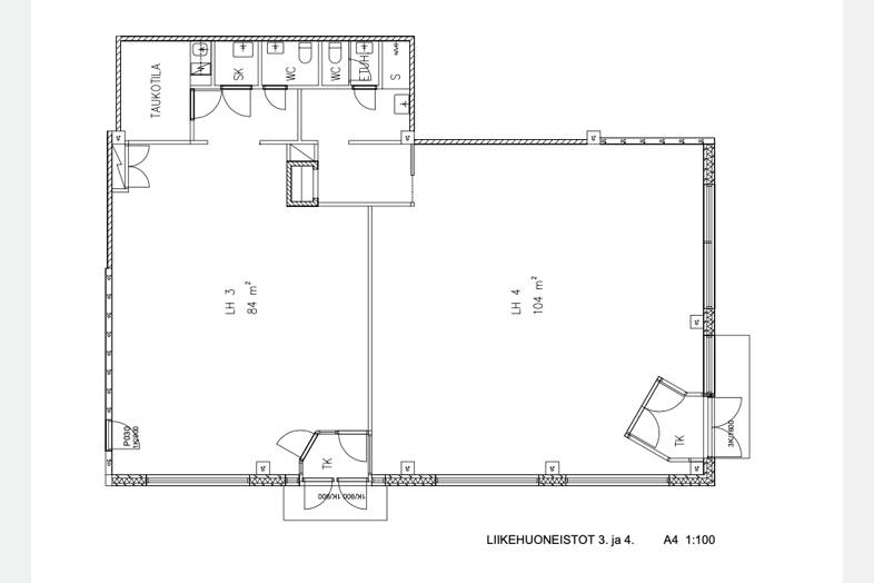
104 m²
Vuokra
15,29 €/m²/kk
Kiinteistö sijaitsee kaupallisella paikalla Prisman ja Citymarketin välissä Länsikeskuksessa.
Vuokrattava tila sijaitsee rakennuksen kulmassa ja näyteikkunat ovat Viilarinkadun suuntaan. Tilassa toiminut viimeksi keittiömyymälä ja kirpputori. Huoneistossa on myös suihku.
Tämän tilan vuokrapyyntö on 1590 e/kk + alv + sähkö ja vesi.
Pihalla runsaasti ilmaista pysäköintitilaa. Tila on pohjakuvassa LH4.
Perustiedot
Tyyppi:
Liiketila
Sopimustyyppi:
Vuokrataan
Osoite:
Asentajankatu 8, 20320 Turku
Kaupunginosa:
Länsikeskus
Vuokra:
15,29 €/m²/kk
Linkit
Kartta
Tietoa ilmoittajasta
Toimitilavälitys RHG Oy
Näytä kaikki saman ilmoittajan kohteetHämeenkatu 2 B20
20500
Turku














