Uudet käyttö- ja sopimusehdot
Päivitämme käyttö- ja sopimusehtojamme. Uudet ehdot ovat voimassa 1.5.2025 alkaen. Tutustu ehtoihin
Sorvaajankatu 11 a Herttoniemi, Helsinki
00880Tyyppi
Tuotantotila
Koko
580 m²
Kerros
2
Vuokra
Kysy hintaa!
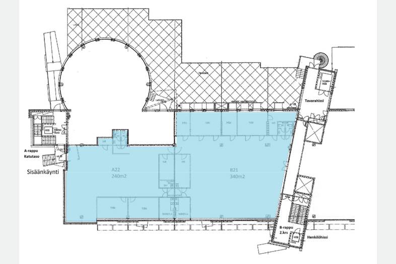
SORVAAJANKATU 11a - liike-/varasto-/tuotanto-/toimistotila 580m2
Tässä monikäyttöisessä tilassa on avotilan huonetta, pari pientä varastotilaa, 2 x keittiö- ja 4 x wc-tilaa. Ikkunanäkyvyyttä ja käynti suoraan kadulta.
Tavarahuolto katetun lastauslaiturin (jossa nostin) ja tavarahissin kautta.
Lisätiedot ja kohdenäytöt: p. 040 7070 321 / Heikki
Perustiedot
Tyyppi:
Tuotantotila, Liiketila, Varastotila
Sopimustyyppi:
Vuokrataan
Osoite:
Sorvaajankatu 11 a, 00880 Helsinki
Kaupunginosa:
Herttoniemi
Tilan koko
Kokonaispinta-ala:
580 m²
Tilan jakautuminen tilatyyppien mukaan
| Tilatyypit | Min m² | Max m² | €/m²/kk |
|---|---|---|---|
| Tuotantotila | 580 | ||
| Liiketila | 580 | ||
| Varastotila | 580 |
Lisätiedot
Kerros:
2
Ympäristö
Liikenneyhteydet:
Metro: Herttoniemi 850 m / Siilitie 1,6 km -
Bussipysäkki: 300 m (linjat 79/500) ja 450 m (linjat 80/82/82B/83/94N) -
Itäväylälle autolla: 600 m
Kartta
Tietoa ilmoittajasta

CRE PREMISES
Näytä kaikki saman ilmoittajan kohteetVantaankoskentie 14
01670
VANTAA


































