Uudet käyttö- ja sopimusehdot
Päivitämme käyttö- ja sopimusehtojamme. Uudet ehdot ovat voimassa 1.5.2025 alkaen. Tutustu ehtoihin
Katajanokanlaituri 4 Katajanokka, keskusta, Helsinki
00160Tyyppi
Liiketila
Koko
328 m²
Vuokra
Kysy hintaa!
Saatavilla
Heti vapaa
Rakennuksen kuvaus:
Katajanokan Laituri on parhaillaan rakenteilla oleva toimitalo, joka sijaitsee erinomaisella paikalla Helsingin Katajanokalla meren rannalla. Tämä kiinteistö on osa tärkeää kulttuuriympäristöä ja tarjoaa myös julkisia tiloja merellistä tunnelmaa arvostaville kaupunkilaisille ja matkailijoille. Puupinnat ja uniikki arkkitehtuuri antavat rakennukselle vahvan tunnistettavuuden muihin alueen kiinteistöihin verrattuna. Rakennuksen päärunkomateriaalina käytetään Stora Enson valmistamia massiivipuuelementtejä. Kiinteistöstä on vuokrattavissa tilaa noin 16 000 neliömetriä. Rakennukseen suunnitellaan hotellia, ravintolaa, kattoterassia sekä toimitiloja yrityksille ja palveluntarjoajille. Kiinteistölle haetaan valmistumisen jälkeen LEED Platinum -ympäristösertifikaattia.
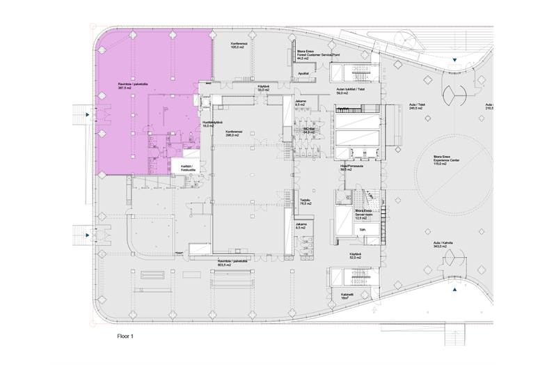
Tilan kuvaus:
Katutason liiketila, josta on hyvä näkyvyys kauppatorille ja raitiovaunupysäkille päin. Talotekniikan suunnittelussa on varauduttu kahvila-/ravintolatilan toteutukseen.
Kerros: 1
Perustiedot
Tyyppi:
Liiketila
Sopimustyyppi:
Vuokrataan
Osoite:
Katajanokanlaituri 4, 00160 Helsinki
Kaupunginosa:
Katajanokka, keskusta
Tilan koko
Kokonaispinta-ala:
328 m²
Rakennustiedot
Kiinteistön nimi:
Myymälätila
Lisätiedot
Saatavilla:
Heti vapaa
Kartta
Tietoa ilmoittajasta
JLL Jones Lang LaSalle Finland Oy
Näytä kaikki saman ilmoittajan kohteetKeskuskatu 7, 4. krs
00100
HELSINKI








