Uudet käyttö- ja sopimusehdot
Päivitämme käyttö- ja sopimusehtojamme. Uudet ehdot ovat voimassa 1.5.2025 alkaen. Tutustu ehtoihin
Levysepänkaari 8 Wärtsilä, Järvenpää
04440Tyyppi
Tuotantotila
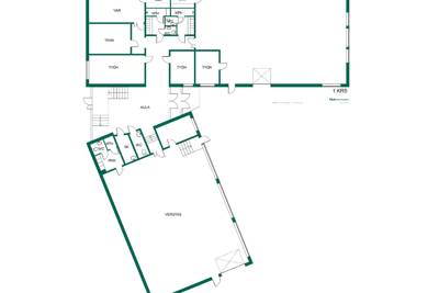
Koko
1 183 m²
Myyntihinta
1 380 000 €
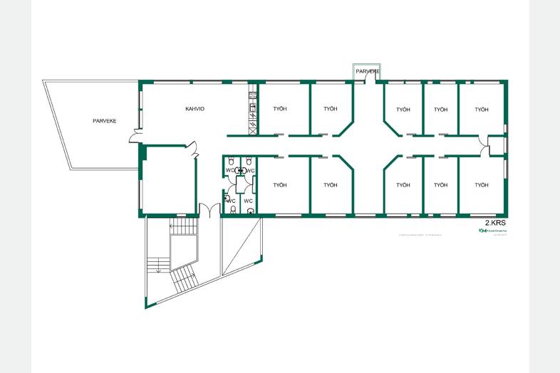
Huikean hieno kiinteistö monipuoliseen yritystoimintaan Järvenpään Wärtsilän alueelta. Tilat riittävät monipuoliseen toimintaan, rakennuksessa on toimisto-, halli- ja varastotiloja. Rakennus on korkeatasoisesti rakennettu ja varustetasoltaan erittäin hyvä. Oma yli 4000 m²:n suuruinen tontti on piilossa katseilta. Hanki nyt henkilökunnan ja asiakkaiden arvoinen toimitila. Pohjoisen Keski-Uusimaan logistiikkaväylä tulee parantamaan liikkumista Lahdenväylän ja Vanhan Hämeentien välillä merkittävästi ja tämä kiinteistö on aivan väylän vierellä.
Perustiedot
Tyyppi:
Tuotantotila
Sopimustyyppi:
Myydään
Osoite:
Levysepänkaari 8, 04440 Järvenpää
Kaupunginosa:
Wärtsilä
Velaton hinta:
1 380 000 €
Myyntihinta:
1 380 000 €
Rakennustiedot
Energialuokka:
Kohteelle ei lain mukaan tarvita energiatodistusta
Lämmitys:
Maalämpö, aurinkeräimet
Lisätiedot
Huoneiden määrä:
10
Ympäristö
Lähipalvelut:
Kaupat: Jamppa, 2 km.Päiväkodit: Jamppa, 2 km.
Liikenneyhteydet:
Bussipysäkki, 0,3 km.
Kartta
Tietoa ilmoittajasta
Kiinteistömaailma | Kerava, Asuntokerava Oy LKV
Näytä kaikki saman ilmoittajan kohteetAleksis Kiven tie 14
04200
Kerava


































































































