Uudet käyttö- ja sopimusehdot
Päivitämme käyttö- ja sopimusehtojamme. Uudet ehdot ovat voimassa 1.5.2025 alkaen. Tutustu ehtoihin
Köydenpunojankatu 8 G, Kamppi Kamppi, Helsinki
00180Tyyppi
Toimisto
Koko
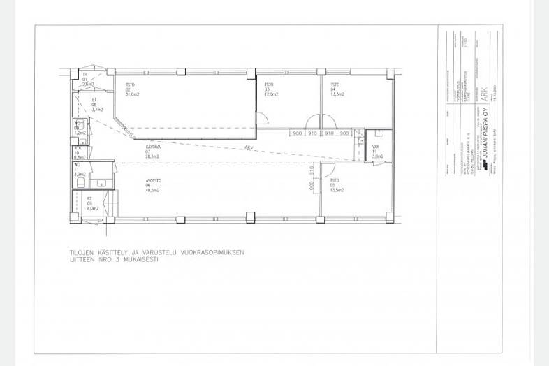
163 m²
Vuokra
Kysy hintaa!
Vuokrataan Merikamppi nimisestä asuinkiinteistön sisäpihan toimistotila 163 m². Avotilaa, 4 huonetta, avokeittiö sekä 2 wc-tilaa.
Perustiedot
Tyyppi:
Toimisto
Sopimustyyppi:
Vuokrataan
Osoite:
Köydenpunojankatu 8 G, Kamppi, 00180 Helsinki
Kaupunginosa:
Kamppi
Tilan koko
Kokonaispinta-ala:
163 m²
Rakennustiedot
Energialuokka:
Ei lain edellyttämää energiatodistusta
Ympäristö
Pysäköinti:
Autohallipaikkoja vuokrattavissa.
Yrityspysäköintitunnus.
Liikenneyhteydet:
Esim. raitiovaunu 7 ja 9.
Kartta
Tietoa ilmoittajasta
Comreal Oy
Näytä kaikki saman ilmoittajan kohteetLäkkisepänkuja 6
00620
Helsinki





