Uudet käyttö- ja sopimusehdot
Päivitämme käyttö- ja sopimusehtojamme. Uudet ehdot ovat voimassa 1.5.2025 alkaen. Tutustu ehtoihin
Silkkitehtaantie 5 Tikkurila, Vantaa
01300Tyyppi
Toimisto
Koko
165 m²
Vuokra
Kysy hintaa!
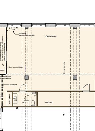
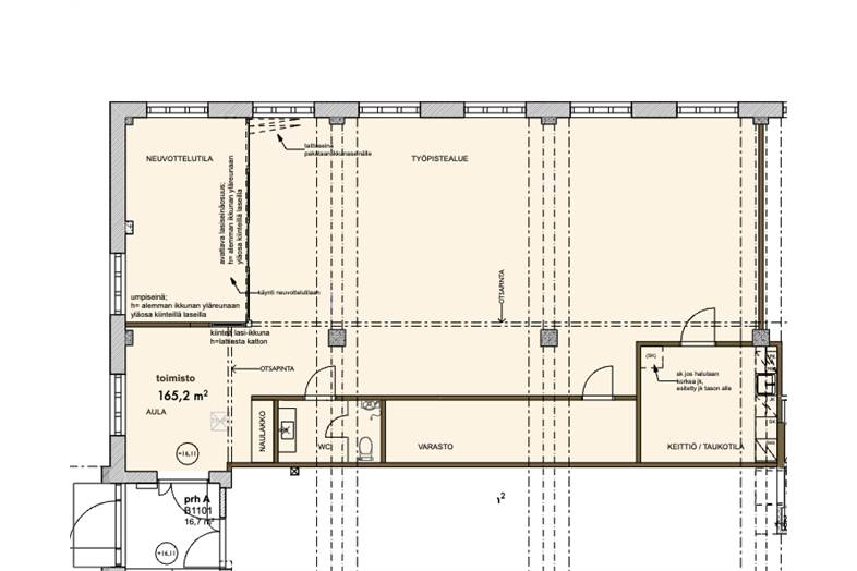
Syksyllä vapautuva katutason 165 m² toimistotila Tikkurilan vanhalla tehdasalueella Silkin Konttorissa. Tila koostuu avotilasta, neuvotteluhuoneesta, työhuoneesta keittiöstä ja wc-tilasta.
Perustiedot
Tyyppi:
Toimisto
Sopimustyyppi:
Vuokrataan
Osoite:
Silkkitehtaantie 5, 01300 Vantaa
Kaupunginosa:
Tikkurila
Linkit
Kartta
Tietoa ilmoittajasta
Toimitilavälitys RHG Oy
Näytä kaikki saman ilmoittajan kohteetHämeenkatu 2 B20
20500
Turku





