Uudet käyttö- ja sopimusehdot
Päivitämme käyttö- ja sopimusehtojamme. Uudet ehdot ovat voimassa 1.5.2025 alkaen. Tutustu ehtoihin
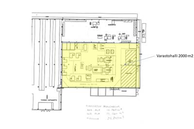
Satamatie 12 Heinola
18100Tyyppi
Varastotila
Koko
2 000 m²
Kerros
1
Vuokra
Kysy hintaa!
Juuri vapautunut 2000 m2 noin 5,5 metriä korkea hallitila, jossa 2 yhteiskäyttöistä lastaustaskua ja yksi oma lastaustasku. Pieni toimistotila varaston yhteydessä. Tila on yhdistettävissä 1500 m2 (korkeaan) ja 1000 m2 matalampaan (5,5 m) varastotilaan. Kiinteistössä on vuokrattavissa toimistoilaa. Kiinteistössä on sosiaalitilat. Pihalla on erittäin paljon pysäköintitilaa.
Lisätietoja ja esitellyt kohteesta Kari Mäkinen 0400 891 057/ 020 7290 710. Lisää kohteita www.premises.fi
Kohteella ei ole lain edellyttämää energiatodistusta tai energialuokka ei tiedossa.
Perustiedot
Tyyppi:
Varastotila
Sopimustyyppi:
Vuokrataan/Myydään
Osoite:
Satamatie 12, 18100 Heinola
Tilan koko
Kokonaispinta-ala:
2000 m²
Lisätiedot
Kerros:
1
Kartta
Tietoa ilmoittajasta

CRE PREMISES
Näytä kaikki saman ilmoittajan kohteetVantaankoskentie 14
01670
VANTAA














