Uudet käyttö- ja sopimusehdot
Päivitämme käyttö- ja sopimusehtojamme. Uudet ehdot ovat voimassa 1.5.2025 alkaen. Tutustu ehtoihin
Visiokatu 4 Hervanta, Tampere
33720Tyyppi
Toimisto
Koko
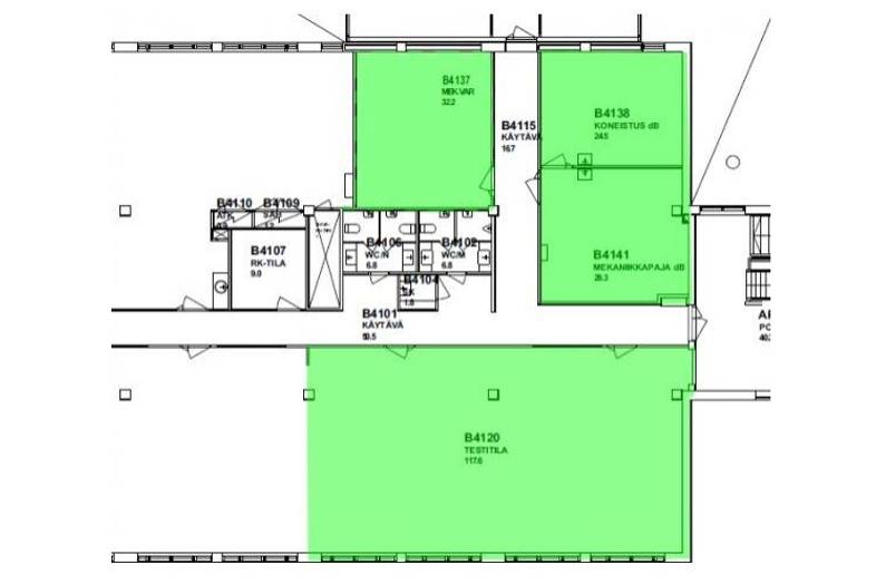
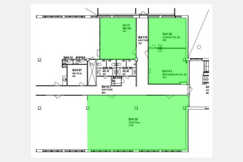
204 m²
Kerros
4 / 4
Vuokra
Kysy hintaa!
Vuokrattavana toimistotilaa aikaisemmin nimillä Hermia 3 tai Hermian Bitti tunnetusta Farmista. Farmi sijaitsee Tampereen teknillisen yliopiston naapurissa erinomaisten liikenneyhteyksien varrella. Kiinteistössä erikokoisia tiloja monenlaisiin tarpeisiin sekä erikoisuutena elektroniikan testaukseen soveltuvia laboratoriotiloja.
Kiinteistössä lounasravintola ja Cow Working- kahvila sekä neuvottelukeskus. Kiinteistön pihalla runsaasti pysäköintipaikkoja.
Perustiedot
Tyyppi:
Toimisto
Sopimustyyppi:
Vuokrataan
Osoite:
Visiokatu 4, 33720 Tampere
Kaupunginosa:
Hervanta
Tilan koko
Kokonaispinta-ala:
204 m²
Rakennustiedot
Kiinteistön nimi:
Kiinteistö Oy Hermian Bitti
Energialuokka:
B2018
Lisätiedot
Kerros:
4 / 4
Kartta
Tietoa ilmoittajasta
Toimitilavuokraus | Retta Management
Näytä kaikki saman ilmoittajan kohteetValimotie 9-11
00380
Helsinki




























