Uudet käyttö- ja sopimusehdot
Päivitämme käyttö- ja sopimusehtojamme. Uudet ehdot ovat voimassa 1.5.2025 alkaen. Tutustu ehtoihin
Pohjoinen Rautatiekatu 25 Kamppi, Helsinki
00100Tyyppi
Toimisto
Koko
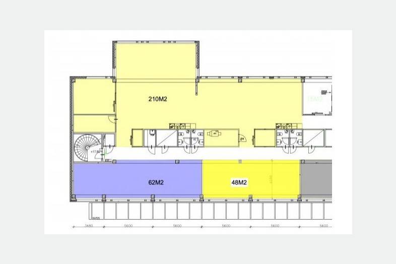
210 m²
Kerros
2 / 8
Vuokra
Kysy hintaa!
Kiinteistö Oy Helsingin Pohjoinen Rautatiekatu 25 on vuosina 2016-2017 tekniikaltaan uudenveroiseksi saneerattu toimistokiinteistö keskeisellä paikalla Helsingin Kampissa. Metro, Kampin bussiterminaali ja useampi raitiolinja sijaitsevat kivenheiton päässä, ja pyöräilyväylä Baana kulkee kohteen edestä.
Valoisat ja viihtyisät toimistokerrokset tarjoavat viihtyisät työtilat 200-300 henkilölle, ja kahdesta kellarikerroksesta löytyy tilava pyöräkellari pukuhuoneineen, varastotilaa sekä pysäköintihalli 15 autolle. Ensimmäisen kerroksen neuvottelu- ja kokoustilat ovat kaikkien vuokralaisten yhteiskäytössä.
Perustiedot
Tyyppi:
Toimisto
Sopimustyyppi:
Vuokrataan
Osoite:
Pohjoinen Rautatiekatu 25, 00100 Helsinki
Kaupunginosa:
Kamppi
Tilan koko
Kokonaispinta-ala:
210 m²
Rakennustiedot
Kiinteistön nimi:
Kiinteistö Oy Helsingin Pohjoinen Rautatiekatu 25
Rakennusvuosi:
1999
Energialuokka:
D2018
Lisätiedot
Kerros:
2 / 8
Kartta
Tietoa ilmoittajasta
Toimitilavuokraus | Retta Management
Näytä kaikki saman ilmoittajan kohteetValimotie 9-11
00380
Helsinki
























