Uudet käyttö- ja sopimusehdot
Päivitämme käyttö- ja sopimusehtojamme. Uudet ehdot ovat voimassa 1.5.2025 alkaen. Tutustu ehtoihin
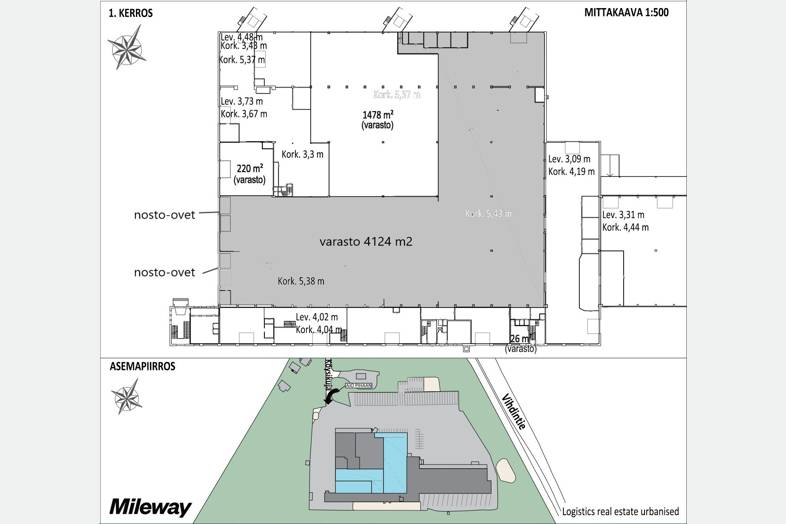
Köysikuja 1 Koivuvaara, Vantaa
01640Tyyppi
Varastotila
Koko
4 124 m²
Vuokra
Kysy hintaa!
Vuokrataan yli 5m korkea maantason 4124m2 Tuotantotila 1 lastaustaskulla ja 4 nosto-ovella. Nosto-ovet ovat 4m leveät.
Kiinteistössä löytyy myös toimistotiloja.
Köysikuja 1 on logistiikkakiinteistö loistavalla sijainnilla Vantaan Hämevaarassa. Keskeinen sijainti Vihdintien varrella, josta lyhyet yhteydet kaikille pääväylille.
Perustiedot
Tyyppi:
Varastotila
Sopimustyyppi:
Vuokrataan
Osoite:
Köysikuja 1, 01640 Vantaa
Kaupunginosa:
Koivuvaara
Kartta
Tietoa ilmoittajasta
Aninkaisten Kiinteistövälitys Oy
Näytä kaikki saman ilmoittajan kohteetLäkkisepänkuja 6
00620
Helsinki










