Uudet käyttö- ja sopimusehdot
Päivitämme käyttö- ja sopimusehtojamme. Uudet ehdot ovat voimassa 1.5.2025 alkaen. Tutustu ehtoihin
Aleksanterinkatu 46 Kluuvi, Keskusta, HELSINKI
00100Tyyppi
Toimisto
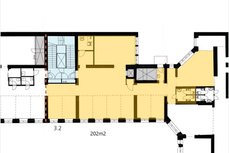
Koko
202 m²
Kerros
3
Vuokra
Kysy hintaa!
Vuokrataan Gaselli-korttelissa 3.kerroksen tyylikäs toimistotila 202m2. Tila on muokattavissa vuokralaisen toiveiden mukaan.
Kiinteistö Oy Gaselli on vuonna 1892 valmistunut K.A. Wreden suunnittelema ja Julius Tallbergin rakennuttama arvokiinteistö. Kiinteistö sijaitsee Helsingin ydinkeskustan parhaimmalla paikalla Gaselli-korttelissa, Aleksanterinkadun varrella. Parannustyöt on saatu valmiiksi ja ne on tehty kiinteistön arkkitehtuuria ja arvokasta historiaa kunnioittaen. Uudet toimistotilat tunnelmallisessa ja arvokkaassa rakennuksessa ovat vertaansa vailla.
Aleksanterinkadun ja Mikonkadun kulmaan sijoittuvassa kiinteistössä on laadukkaita toimistotiloja monen kokoisille yrityksille. Kohteessa on tehokkaat tilaratkaisut, jotka voi joustavasti hyödyntää monitilaympäristönä. Tiloissa on koneellinen ilmanvaihto ja jäähdytys.
Lähin autoilijoita palveleva pysäköintihalli sijaitsee Kluuvissa, sisäänajo Kaisaniemestä tai Fabianinkadulta. Julkisen liikenteen yhteydet ovat vain lyhyen kävelymatkan päässä.
Perustiedot
Tyyppi:
Toimisto
Sopimustyyppi:
Vuokrataan
Osoite:
Aleksanterinkatu 46, 00100 HELSINKI
Kaupunginosa:
Kluuvi, Keskusta
Lisätiedot
Kerros:
3
Kartta
Tietoa ilmoittajasta
Aninkaisten Kiinteistövälitys Oy
Näytä kaikki saman ilmoittajan kohteetLäkkisepänkuja 6
00620
Helsinki












