Uudet käyttö- ja sopimusehdot
Päivitämme käyttö- ja sopimusehtojamme. Uudet ehdot ovat voimassa 1.5.2025 alkaen. Tutustu ehtoihin
Miestentie 7 (b talo) Otaniemi, keilaniemi, Espoo
02150Tyyppi
Toimisto
Koko
900 m²
Vuokra
Kysy hintaa!
Saatavilla
Heti vapaa
Rakennuksen kuvaus:
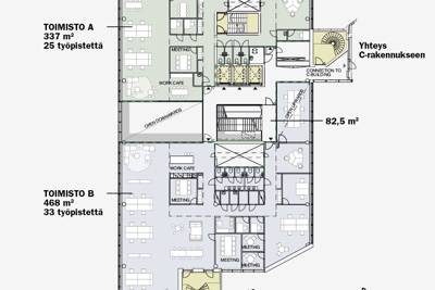
Swing -hankkeen toimistotalon ja hotellin käsittävä 2. vaihe valmistui 2021 lopulla. Olemassa oleva toimistotalo ja kaksi uutta rakennusta liitetään toisiinsa ja vuokralaiset voivat hyödyntää kaikkien talojen palveluita, kuten ravintolaa, aulaa ja lounge-alueita, neuvotteutiloja ja kuntosalia. Swing Housessa hyvinvointi on tärkeää ja luodaan WELL ?sertifioidut työskentelyolosuhteet. Kohde tarjoaa tiloja alkaen 25 hengen yrityksestä aina suuriin yrityksiin. Kerroskokoa on n. 900m2 ja sisäportaat ovat mahdolliset.
Tilan kuvaus:
Mahdollisuus vuokrata täysin uusi, yrityksellesi kustomoitu toimisto Swing House -kohteesta, josta tarjolla vielä useita tilakokoja, esim. kokonainen kerros 3. kerroksessa. Uudiskohde on juuri valmistunut ja tilat olevat erityisen modernit ja mahdollistavat tilasuunnittelut yhdessä vuokralaisen kanssa. Rakentamisessa keskitytty hyvinvointiin eli laadukkaaseen sisäilmaan, materiaaleihin, luonnonvaloon ja työntekijöiden vireyteen sekä liikkuvuuteen.
Kerros: 3
Perustiedot
Tyyppi:
Toimisto
Sopimustyyppi:
Vuokrataan
Osoite:
Miestentie 7 (b talo), 02150 Espoo
Kaupunginosa:
Otaniemi, keilaniemi
Tilan koko
Kokonaispinta-ala:
900 m²
Rakennustiedot
Kiinteistön nimi:
Toimistotila
Lisätiedot
Saatavilla:
Heti vapaa
Kartta
Tietoa ilmoittajasta
JLL Jones Lang LaSalle Finland Oy
Näytä kaikki saman ilmoittajan kohteetKeskuskatu 7, 4. krs
00100
HELSINKI












