Uudet käyttö- ja sopimusehdot
Päivitämme käyttö- ja sopimusehtojamme. Uudet ehdot ovat voimassa 1.5.2025 alkaen. Tutustu ehtoihin
<< Takaisin kohdesivulle

Digiremontoitu kuva vuokrattavasta tilasta.

Kuva vuokrattavasta tilasta.

Digiremontoitu kuva vuokrattavasta tilasta.

Digiremontoitu kuva vuokrattavasta tilasta.

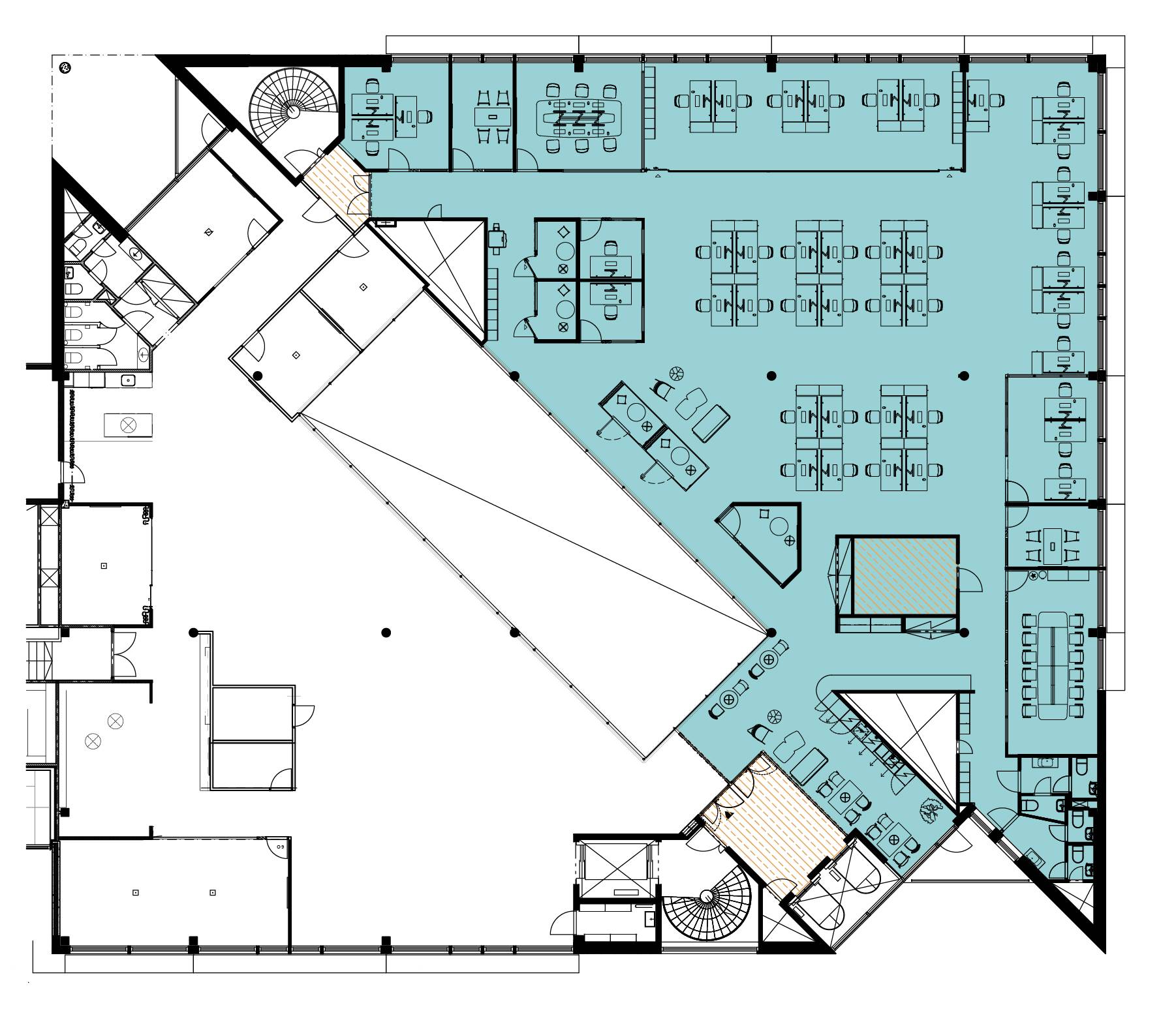
Vuokrattavan tilan pohjakuva.

Kuva vuokrattavasta tilasta.

Kuva vuokrattavasta tilasta.

Kuva vuokrattavasta tilasta.

Säterinportin kahvila.

Kuntokeskus Säterinportti on vuokralaisten käytössä.

Mukavuusalue on Säterinportin vuokralaisten käytössä.

Säterinportilla on BREEAM-sertifikaatti.

Säterinportilla on WELL-sertifikaatti.

Helposti saavutettava ja näkyvä sijainti.
<< Takaisin kohdesivulle