Uudet käyttö- ja sopimusehdot
Päivitämme käyttö- ja sopimusehtojamme. Uudet ehdot ovat voimassa 1.5.2025 alkaen. Tutustu ehtoihin
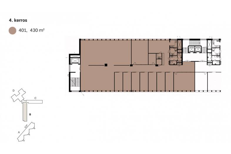
Tekniikantie 4 Otaniemi, Espoo
02130Tyyppi
Toimisto
Koko
430 m²
Vuokra
Kysy hintaa!
Vuokrataan neljännen kerroksen 430m2 toimistotila. Aallonharjan toimistokiinteistö sijaitsee Espoon Otaniemessä eli suomalaisen insinööriosaamisen ja huippuinnovaatioiden pääkallopaikalla. Täällä riittää ”pöhinää”, verkostoitumismahdollisuuksia sekä synergiaetuja erityisesti tekniikan alan toimijoille
Autopaikkoja vuokrattavana kiinteistön pihalta. Metroasemalle on 350 m (Aalto-Yliopisto). Bussipysäkille 300 m (108N, 111, 555).
Aallonharjan A-talon ravintolaa uudistetaan parhaillaan. Luvassa on tuoreista raaka-aineista valmistettuja ja hyvää työvirettä tukevia makuelämyksiä.
D-talon viihtyisä kahvila palvelee myös ravintolan uudistuksen aikana. Herkulliset kahvit ja tuoreet leivonnaiset, aamiaistuotteet ja välipalat – ota mukaan tai nauti paikan päällä!
Kysy lisää Jouko Raitanen Helsinki puh. 0504695444
Perustiedot
Tyyppi:
Toimisto
Sopimustyyppi:
Vuokrataan
Osoite:
Tekniikantie 4, 02130 Espoo
Kaupunginosa:
Otaniemi
Linkit
Kartta
Tietoa ilmoittajasta
Toimitilavälitys RHG Oy
Näytä kaikki saman ilmoittajan kohteetHämeenkatu 2 B20
20500
Turku
















































