Uudet käyttö- ja sopimusehdot
Päivitämme käyttö- ja sopimusehtojamme. Uudet ehdot ovat voimassa 1.5.2025 alkaen. Tutustu ehtoihin
Metsänpojankuja 1 Pohjois-Tapiola, Espoo
02130Tyyppi
Toimisto
Koko
1 500 - 2 330 m²
Vuokra
Kysy hintaa!
MaarinPortti on Pohjois-Tapiolan ja Otaniemen Maarin alueen rajalla sijaitseva 6-kerroksinen toimitilakiinteistö, joka modernisoidaan ja saneerataan kokonaisvaltaisesti vastaamaan nykypäivän yritysten moninaisia tarpeita. Uudistuksen myötä syntyy vastuullinen ja tyylikäs pääkonttoritason toimitilakiinteistö. MaarinPorttin modernit toimitilat ovat muunneltavia ja ne suunnitellaan yksilöllisesti vastaamaan yrityksesi tarpeita.
Tiloja valmistuu remontista 2024 Maarinportista. Tilakoot esim. 268 - 1165 m2. Kerroksen koko n 1165 m2. Tällä hetkellä tiloja saatavissa kerroksittain, jopa yli 5000 m2. Yhteen koko kerrokseen saatavissa 50 - 120 työpistettä. Tulevana vuokralaisena tilankäyttöratkaisuun ja materiaalivalintoihin voi vaikuttaa ja käytössä on myös vuokranantajan tarjoama sisustussuunnittelija.
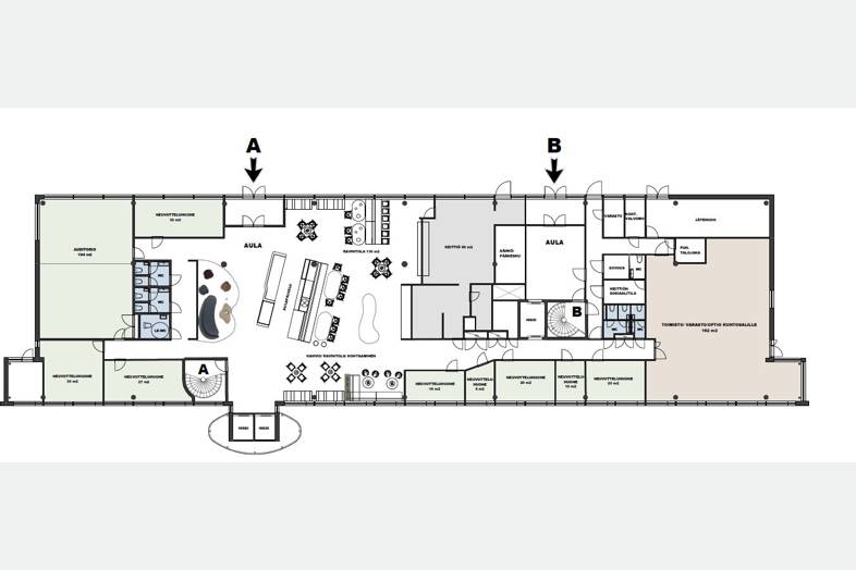
Tämä on esimerkki kahden kerroksen kattavasta toimitila kokonaisuudesta, tilaan saa noin 100-200 työpistettä, riippuen tilankäyttöratkaisuista.
Lisätietoja numerosta 020 7290 710. Lisää kohteita osoitteessa premises.fi.
Energialuokka A
Perustiedot
Tyyppi:
Toimisto
Sopimustyyppi:
Vuokrataan
Osoite:
Metsänpojankuja 1, 02130 Espoo
Kaupunginosa:
Pohjois-Tapiola
Tilan koko
Kokonaispinta-ala:
2330 m²
Tilan jakautuminen tilatyyppien mukaan
| Tilatyypit | Min m² | Max m² | €/m²/kk |
|---|---|---|---|
| Toimisto | 1 500 | 2 330 |
Kartta
Tietoa ilmoittajasta

CRE PREMISES
Näytä kaikki saman ilmoittajan kohteetVantaankoskentie 14
01670
VANTAA














