Uudet käyttö- ja sopimusehdot
Päivitämme käyttö- ja sopimusehtojamme. Uudet ehdot ovat voimassa 1.5.2025 alkaen. Tutustu ehtoihin
Martinkyläntie 39 A Varisto, Vantaa
01720Tyyppi
Toimisto
Koko
200 m²
Kerros
1
Vuokra
Kysy hintaa!
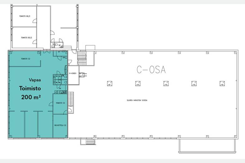
Vuokrataan 200 m2 toimistotila kiinteistön 1. kerroksesta.
Tilakokonaisuuteen kuuluu avotoimisto, neuvottelu- ja toimistohuoneita, 2 vessaa, keittiökomero sekä siivouskomero. Tilan vapaa huonekorkeus on n. 3,35 m.
Kehä III:n välittömässä läheisyydessä, Vantaan Variston yritysalueella sijaitseva Martinkyläntie 39 A pitää sisällään useita erilaisia yhdessä tai erikseen vuokrattavia toimisto- ja varastotiloja. 2-kerroksisen kiinteistön tilat tarjoavat oivalliset lähtökohdat vuokralaisyrityksen tarpeiden ja toiveiden mukaiselle räätälöinnille.
Lisätietoja numerosta 020 7290 710. Lisää kohteita osoitteessa www.premises.fi.
Kohteella ei ole lain edellyttämää energiatodistusta tai energialuokka ei tiedossa.
Perustiedot
Tyyppi:
Toimisto
Sopimustyyppi:
Vuokrataan
Osoite:
Martinkyläntie 39 A, 01720 Vantaa
Kaupunginosa:
Varisto
Tilan koko
Kokonaispinta-ala:
200 m²
Lisätiedot
Kerros:
1
Kartta
Tietoa ilmoittajasta

CRE PREMISES
Näytä kaikki saman ilmoittajan kohteetVantaankoskentie 14
01670
VANTAA





