Uudet käyttö- ja sopimusehdot
Päivitämme käyttö- ja sopimusehtojamme. Uudet ehdot ovat voimassa 1.5.2025 alkaen. Tutustu ehtoihin
Vattuniemenkatu 19 Lauttasaari, Helsinki
00210Tyyppi
Toimisto
Koko
300 - 824 m²
Vuokra
Kysy hintaa!
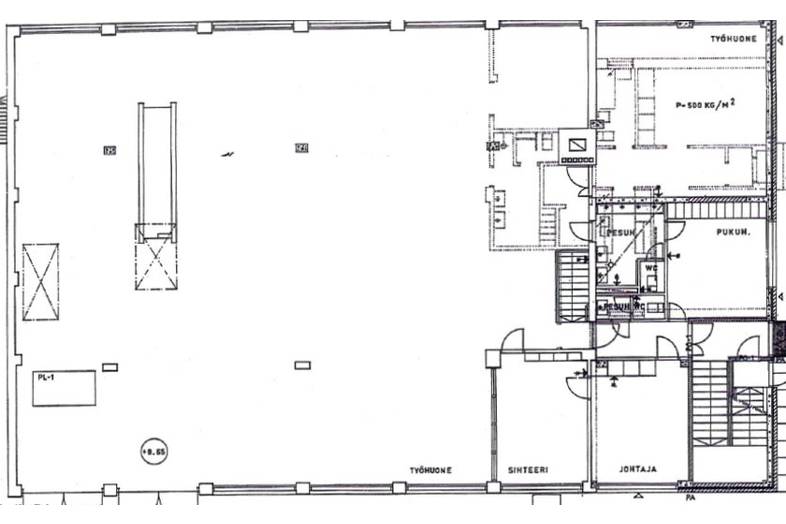
Vuokrataan varasto-/tuotanto- sekä toimistotilaa 824 m2 Helsingin Lauttasaaresta. Tila koostuu katutason tilasta 524 m2 ( korkeus n. 3,5 m) sekä 300 m2 kellaritilasta, mihin rakennettu tavarahissi. Katutason tilan varastoon johtavat kuvan pariovet. Tilat vuokrataan mieluiten yhdessä.
Lisätietoja: p. 045 261 6555 /Mika
Lisää kohteita: www.premises.fi
Kohteella ei ole lain edellyttämää energiatodistusta tai sitä ei ole saatavilla.
Perustiedot
Tyyppi:
Toimisto, Varastotila, Tuotantotila
Sopimustyyppi:
Vuokrataan
Osoite:
Vattuniemenkatu 19, 00210 Helsinki
Kaupunginosa:
Lauttasaari
Tilan koko
Kokonaispinta-ala:
824 m²
Tilan jakautuminen tilatyyppien mukaan
| Tilatyypit | Min m² | Max m² | €/m²/kk |
|---|---|---|---|
| Toimisto | 300 | 824 | |
| Varastotila | 300 | 824 | |
| Tuotantotila | 300 | 824 |
Kartta
Tietoa ilmoittajasta

CRE PREMISES
Näytä kaikki saman ilmoittajan kohteetVantaankoskentie 14
01670
VANTAA












