Uudet käyttö- ja sopimusehdot
Päivitämme käyttö- ja sopimusehtojamme. Uudet ehdot ovat voimassa 1.5.2025 alkaen. Tutustu ehtoihin
Ensimmäinen Savu 2 Virkamies, Vantaa
01510Tyyppi
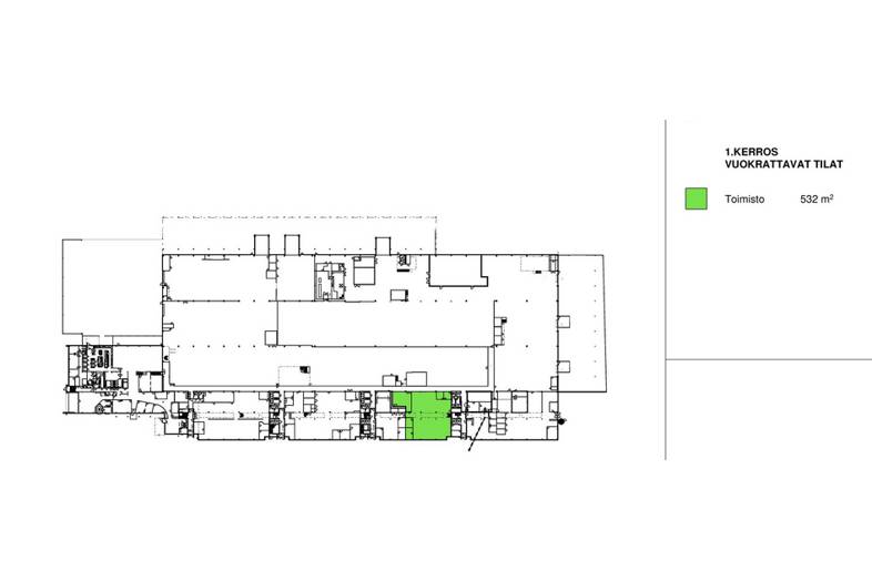
Toimisto
Koko
982 m²
Vuokra
Kysy hintaa!
Yhdistelmä avo- ja huonetoimistotilaa kahdessa kerroksessa. Runsaasti pysäköintitilaa.
Loistavalla paikalla Aviapoliksen alueella sijaitseva tuotanto- ja varastokiinteistö, jonka päärakennus on valmistunut 1979. Useasta rakennuksesta koostuvassa kiinteistössä on modernia tuotanto-, varasto- ja toimistotilaa. Kiinteistön käyttäjille on tarjolla hyvät palvelut: viihtyisä lounasravintola, vuokrattavia neuvottottelutiloja, aulapalvelu, kuntosali sekä saunatilat. Vuokrattavat tilat eivät sovellu urheilukäyttöön.
Kohde sijaitsee loistavalla paikalla voimakkaasti kehittyvällä Vantaan Aviapoliksen business alueella Kehäradan varrella aivan Kehä III:n läheisyydessä. Lentoasema on noin 3 km päässä. Tuusulan väylältä on hyvät liikennöintiyhteydet Helsingin keskustaan. Matkaa Aviapoliksen juna-asemalle on noin 1 km.
Lisätietoja 020 7290 710 ja lisää kohteita www.premises.fi
Kohteella ei ole lain edellyttämää energiatodistusta tai energialuokka ei tiedossa.
Perustiedot
Tyyppi:
Toimisto
Sopimustyyppi:
Vuokrataan
Osoite:
Ensimmäinen Savu 2, 01510 Vantaa
Kaupunginosa:
Virkamies
Tilan koko
Kokonaispinta-ala:
982 m²
Ympäristö
Liikenneyhteydet:
Sujuvat yhteydet Kehä III:lta.
Kartta
Tietoa ilmoittajasta

CRE PREMISES
Näytä kaikki saman ilmoittajan kohteetVantaankoskentie 14
01670
VANTAA
















