Uudet käyttö- ja sopimusehdot
Päivitämme käyttö- ja sopimusehtojamme. Uudet ehdot ovat voimassa 1.5.2025 alkaen. Tutustu ehtoihin
Uudenmaankatu 16-20 Punavuori, Helsinki
00120Tyyppi
Toimisto
Koko
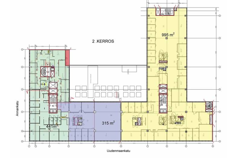
315 m²
Kerros
2
Vuokra
Kysy hintaa!
Talo on täysin saneerattu ja tilat rakennetaan vuokralaiselle betonilta. Pohja on joustava ja mahdollistaa kaikki variaatiot täydestä koppikonttorista avotilaan, ja kohteelle räätälöidään yrityksen toimintaa parhaiten palvelevat tilat.
Vuokrattavana monipuolisesti erilaisia tilakokonaisuuksia ja mahdollista esimerkiksi vuokrata noin 315 m2 kokoinen toimisto talon toisesta kerroksesta. Tila sijaitsee Uudenmaankadun puoleisella sivulla. Tila on laajennettavissa aina koko kerroksen kokoiseksi, noin 1750 m2. Muutto on mahdollinen vuokralaismuutoksien puitteissa.
Uudenmaankatu 16-20 toimitilakiinteistö Dekki sijaitsee aivan ydinkeskustassa, Annankadun ja Uudenmaankadun kulmassa keskellä Punavuorta.
Lisätiedot 020 7290 710 ja lisää kohteita premises.fi
Kohteella ei ole lain edellyttämää energiatodistusta tai energialuokka ei tiedossa.
Perustiedot
Tyyppi:
Toimisto
Sopimustyyppi:
Vuokrataan
Osoite:
Uudenmaankatu 16-20, 00120 Helsinki
Kaupunginosa:
Punavuori
Tilan koko
Kokonaispinta-ala:
315 m²
Lisätiedot
Kerros:
2
Tietoa ilmoittajasta

CRE PREMISES
Näytä kaikki saman ilmoittajan kohteetVantaankoskentie 14
01670
VANTAA














