Uudet käyttö- ja sopimusehdot
Päivitämme käyttö- ja sopimusehtojamme. Uudet ehdot ovat voimassa 1.5.2025 alkaen. Tutustu ehtoihin
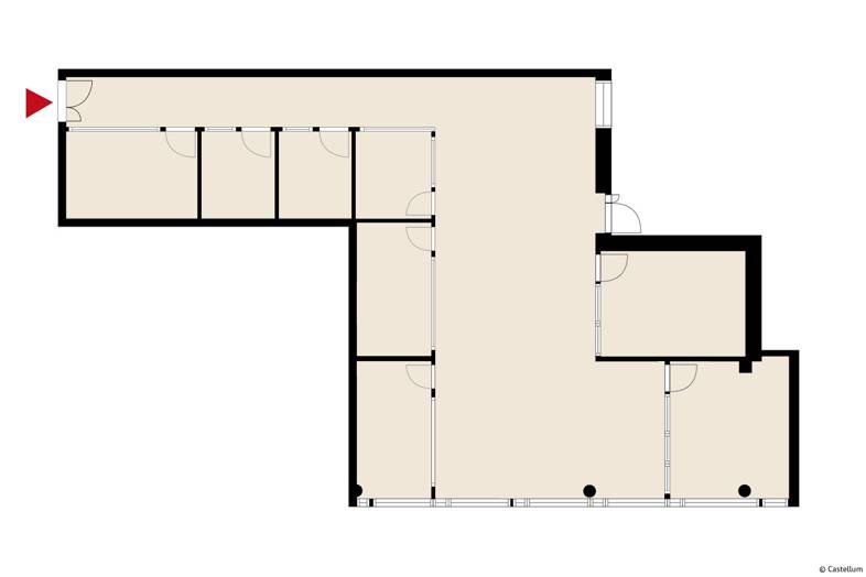
Linnoitustie 3 Leppävaara, Espoo
02600Tyyppi
Toimisto
Koko
191 m²
Vuokra
Kysy hintaa!
Saatavilla
Heti vapaa
Vuokrataan moderni toimistotila Säteri Business Parkin 4. kerroksen pientoimistoalueelta. Kerroksen asiakkaiden yhteisessä käytössä on keittiö, lounge ja wc-tilat. Kiinteistö sijaitsee Raide-Jokerin varrella kivenheiton päässä Sellosta ja Leppävaaran juna-asemasta.
Perustiedot
Tilan koko
Rakennustiedot
Lisätiedot
Ympäristö
Kartta
Tietoa ilmoittajasta
Castellum
Näytä kaikki saman ilmoittajan kohteetVerkkosaarenkatu 5
00580
Helsinki


























