Uudet käyttö- ja sopimusehdot
Päivitämme käyttö- ja sopimusehtojamme. Uudet ehdot ovat voimassa 1.5.2025 alkaen. Tutustu ehtoihin
Manuntie 2 Pyhäntä
92930Tyyppi
Toimisto
Koko
69 m²
Vuokra
7,25 €/m²/kk
Saatavilla
Heti
Pyhännän keskustassa erinomainen toimistotila hyvässä kiinteistössä, jossa toimii mm. Pyhännän kunnanvirasto sekä Osuuspankki. Valoisa ja tyylikäs tila, jossa tilava avotoimisto, keittokomero ja 2 wc-tilaa sekä parveke. Sovi aika tutustumiselle!
Perustiedot
Tyyppi:
Toimisto
Sopimustyyppi:
Vuokrataan
Osoite:
Manuntie 2, 92930 Pyhäntä
Vuokra:
7,25 €/m²/kk
Rakennustiedot
Energialuokka:
Ei energiatodistusta, Kohteella ei ole lain edellyttämää energiatodistusta ja sen vuoksi energialuokka ei ole tiedossa
Lisätiedot
Saatavilla:
Heti
Huoneiden määrä:
1
Muita tietoja:
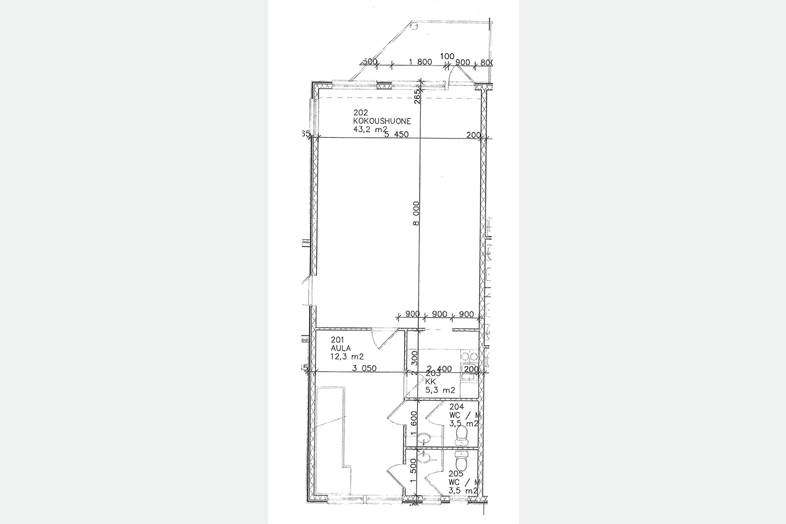
Vuokra: 500,00 e/kk. Vuokra 500 € / kk (ei sisällä eikä lisätä arvonlisäveroa). Vuokra sisältää veden, sähkön ja lämmityksen. Ei muita kuluja. Heti käyttövalmis toimistotila hyväkuntoisessa kiinteistössä. Rakennuksessa mm kunnanvirasto ja Osuuspankki. Toimistotila on talon 2. kerroksessa. Avaran toimistotilan lisäksi hyvin kalustettu keittokomero, 2 wc-tilaa ja aulatila. Valoisassa toimistossa on myös parveke. Vuokra 500 € / kk (ei sisällä eikä lisätä arvonlisäveroa). Vuokra sisältää veden, sähkön ja lämmityksen. Ei muita kuluja. Kysy lisätiedot ja sovi aika tarkemmalle tutustumiselle.
Dokumentit
Kartta
Tietoa ilmoittajasta
OP Koti Pohjoinen Oy LKV, Oulu
Näytä kaikki saman ilmoittajan kohteetIsokatu 14
90100
Oulu






















