Uudet käyttö- ja sopimusehdot
Päivitämme käyttö- ja sopimusehtojamme. Uudet ehdot ovat voimassa 1.5.2025 alkaen. Tutustu ehtoihin
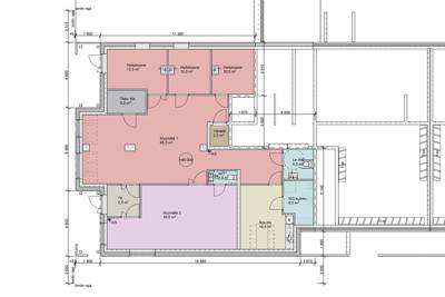
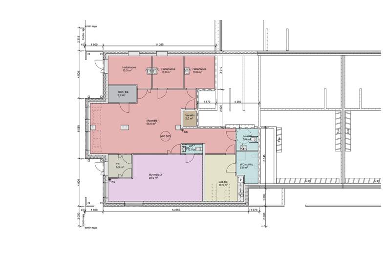
Kankaanaukio 2 Kangas, Jyväskylä
40200Tyyppi
Liiketila
Koko
185 m²
Vuokra
Kysy hintaa!
Liiketilaa näkyvälle paikalle Kankaanaukion kulmaan!
Perustiedot
Tilan koko
Rakennustiedot
Lisätiedot
Ympäristö
Linkit
Kartta
Ota yhteyttä

Tietoa ilmoittajasta

YIT Rakennus Oy
Näytä kaikki saman ilmoittajan kohteetPanuntie 11
00620
HELSINKI
YIT on innovatiivinen ja monipuolinen toimitilarakentaja. Kehitämme ja rakennamme asiakaslähtöisiä ratkaisuja toimistoista liiketiloihin sekä logistiikka- ja tuotantotiloista sairaaloihin ja palvelutaloihin. Vahva markkina-asemamme perustuu pitkäaikaiseen kokemukseen, vastuulliseen tekemiseen ja innovatiivisten ratkaisujen tuomiseen markkinoille. Olemme luoneet uusia toimitilakonsepteja, jotka vastaavat asiakkaidemme tarpeisiin muuttuvassa toimintaympäristössä. Oman vahvan myyntiorganisaatiomme ansiosta saamme asiakkailtamme sekä tietoa heidän tarpeistaan että palautetta tilojen toimivuudesta. Näin kykenemme kehittämään toiveiden mukaisia ja tarvittaessa poikkeuksellisiakin toimitilaratkaisuja.

















