Uudet käyttö- ja sopimusehdot
Päivitämme käyttö- ja sopimusehtojamme. Uudet ehdot ovat voimassa 1.5.2025 alkaen. Tutustu ehtoihin
Lapinniemenranta 2 Lapinniemi, TAMPERE
33180Tyyppi
Toimisto
Koko
260 m²
Vuokra
Kysy hintaa!
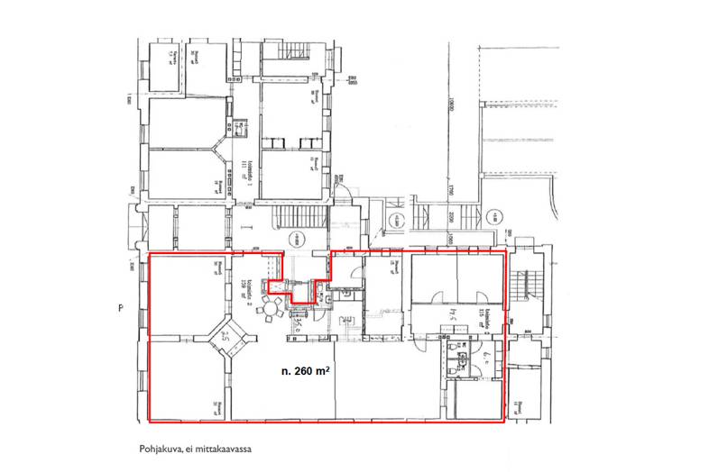
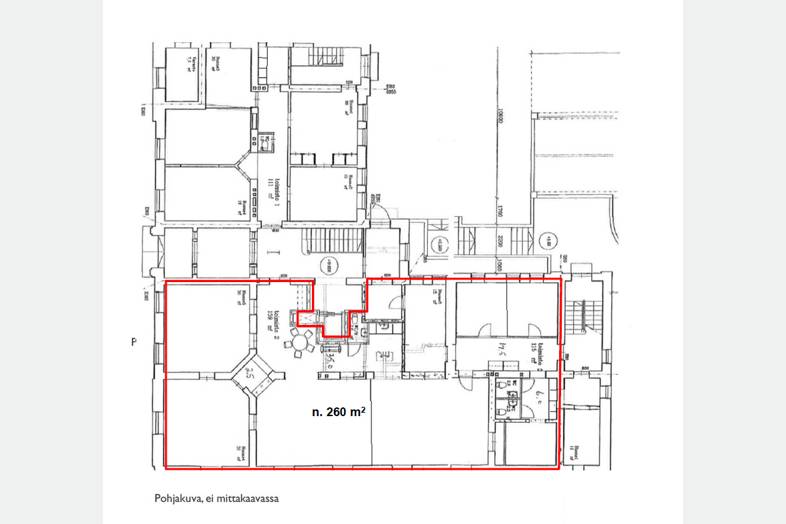
Vuokrataan noin 260 m2 näyttävä jäähdytetty toimistotila Lapinniemestä.
Bertel Strömmerin vuonna 1923 suunnittelema arvotalo.
Tilan pinnat ovat tuoreet ja lattiassa on käytetty materiaalina mm. kaunista tummaa graniittia.
Alueella on runsaasti ilmaisia 4 tunnin ja 6 tunnin pysäköintipaikkoja.
Mahdollisuus vuokrata samasta talosta lisätila.
Esite liitteenä.
Kysy lisää!
Perustiedot
Tyyppi:
Toimisto
Sopimustyyppi:
Vuokrataan
Osoite:
Lapinniemenranta 2, 33180 TAMPERE
Kaupunginosa:
Lapinniemi
Tilan koko
Kokonaispinta-ala:
260 m²
Dokumentit
Kartta
Tietoa ilmoittajasta

Catella Property Oy, Tampere
Näytä kaikki saman ilmoittajan kohteetHämeenkatu 13 b
33100
TAMPERE






















