Uudet käyttö- ja sopimusehdot
Päivitämme käyttö- ja sopimusehtojamme. Uudet ehdot ovat voimassa 1.5.2025 alkaen. Tutustu ehtoihin
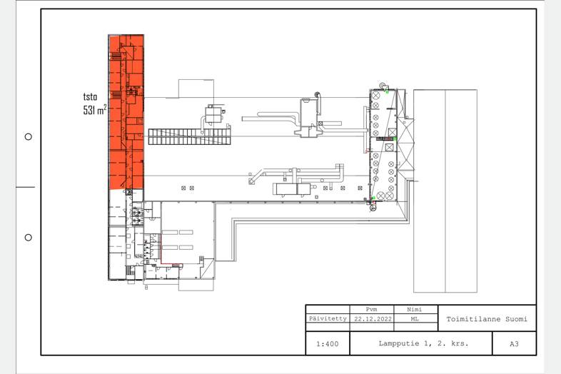
Lampputie 1 Suutarila, Helsinki
00740Tyyppi
Toimisto
Koko
531 m²
Kerros
2
Vuokra
Kysy hintaa!
Modernia toimistotilaa rakennuksen toisessa kerroksessa. Alunperin 826 m2:n kokoisesta tilasta on nyt vapaana 531 m2. Kellarikerroksesta voi vuokrata lisäksi erillisen saunallisen pukuhuonetilan.
Kiinteistössä erillinen lähettämö lastauslaiturilla. Tuotanto- ja varastotilat sijaitsevat maan tasossa ja kiinteistössä on runsaasti suuria nosto-ovia. Tiloissa on myös pesuhalli. Runsaat piha-alueet niin varastointiin kuin pysäköintiinkin. Kiinteistössä toimii lounasravintola Calabria ja sauna- ja pukuhuonetilojakin on tarjolla.
Kohteella on erinomainen saavutettavuus teiltä 3 ja 4, Kehä III -rampille noin 500 m.
Lisätiedot 020 7290710, lisää kohteita osoitteesta www.premises.fi
Kohteella ei ole lain edellyttämää energiatodistusta.
Perustiedot
Tyyppi:
Toimisto
Sopimustyyppi:
Vuokrataan
Osoite:
Lampputie 1, 00740 Helsinki
Kaupunginosa:
Suutarila
Tilan koko
Kokonaispinta-ala:
531 m²
Lisätiedot
Kerros:
2
Kartta
Tietoa ilmoittajasta

CRE PREMISES
Näytä kaikki saman ilmoittajan kohteetVantaankoskentie 14
01670
VANTAA












