Uudet käyttö- ja sopimusehdot
Päivitämme käyttö- ja sopimusehtojamme. Uudet ehdot ovat voimassa 1.5.2025 alkaen. Tutustu ehtoihin
Holkkitie 8B Roihupelto, Helsinki
00880Tyyppi
Toimisto
Koko
106 m²
Vuokra
Kysy hintaa!
Roihupellon suositulla yritys-/teollisuusalueella uuden veroinen monitoimikiinteistö. Hyvä sijainti lähellä Itäväylää.
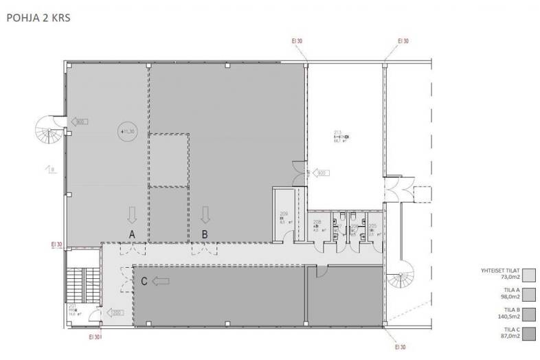
2.kerroksessa on vielä vapaana monikäyttöistä tilaa: 106, 120 ja 172 m2. Tilat voidaan tarvittaessa yhdistää.
Korkeaa ja edustavaa toimisto-näyttelytilaa hyvällä sijainnilla, lähellä monipuoliset palvelut, kuten Lanterna. Erinomaiset julkiset kulkuyhteydet. Pysäköintitilaa pihalla, ja kadulla.
Tiloissa koneellinen ilmanvaihto lämmöntalteenotolla ja jäähdytyksellä. Kustannustehokas tilaratkaisu.
Sovi näyttö mika.tilli@rhg.fi tai 040 7013005
Perustiedot
Tyyppi:
Toimisto
Sopimustyyppi:
Vuokrataan
Osoite:
Holkkitie 8B, 00880 Helsinki
Kaupunginosa:
Roihupelto
Linkit
Kartta
Tietoa ilmoittajasta
Toimitilavälitys RHG Oy
Näytä kaikki saman ilmoittajan kohteetHämeenkatu 2 B20
20500
Turku








