Miestentie 9 Keilaniemi, Espoo

02150

Tyyppi

Toimisto

Koko

900 m²

Vuokra

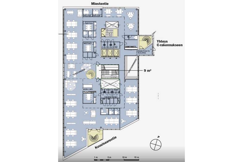
Vuokrattavana koko kerroksen toimisto ( 900 m2). Toimisto sijatsee 5.kerroksessa ja tiloista avautuvat ikkunat neljään suuntaan. Loistavien liikenneyhteyksien varrella sjaitsevasta Swing:ista on vain muutaman minuutin kävelymatka metroasemalle. Kohde palvelee yhtä hyvin myös autoilijoita ja pyöräilijöitä. Uudet ja viihtyisät tilat soveltuu erinomaisesti edustustilaisuuksiin. Kohteessa kaikki tarvittavat palvelut- vuokrattavat neuvottelutilat, aulapalvelu, lounasravintola.

Perustiedot

Tyyppi:
Toimisto
Sopimustyyppi:
Vuokrataan
Osoite:
Miestentie 9, 02150 Espoo
Kaupunginosa:
Keilaniemi

Linkit

Kartta

Ota yhteyttä

Toimitilavälitys RHG Oy logotyyppi
Heli Reinberg
Heli Reinberg
Näytä puhelinnumero

Lähetä yhteydenottopyyntö

Tietosuojaseloste
This site is protected by reCAPTCHA and the Google Privacy Policy and Terms of Service apply.

Tietoa ilmoittajasta

Toimitilavälitys RHG Oy logotyyppi