Fredrikinkatu 48 Keskusta, Helsinki

00100

Tyyppi

Liiketila

Koko

189 m²

Vuokra

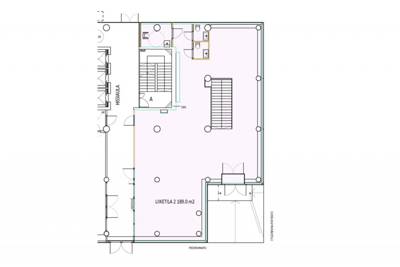
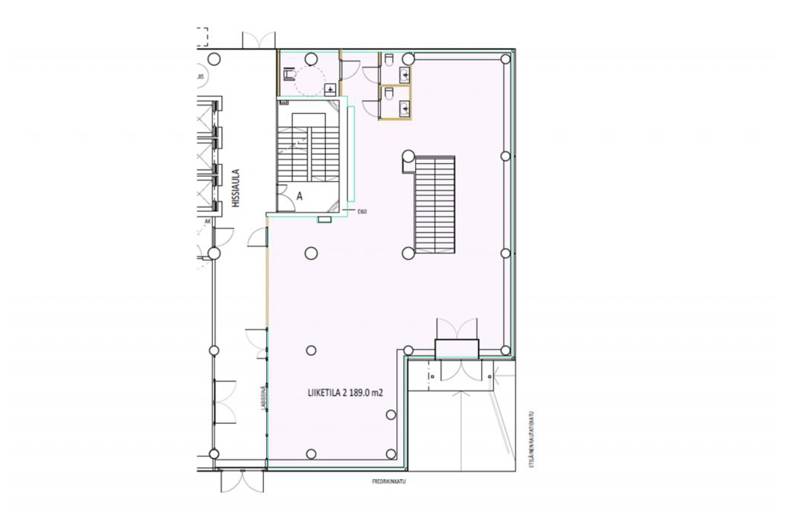
Vuokrataan Kampin kauppakeskuksen läheisyydessä sijaitsevassa kiinteistössä katutason 189m2 liiketila, joka soveltuu laadukkaalle kahvilalle/kevyen lounaan tarjoalle. Lämmityskeittiövalmiudet toteutettavissa, ei rasvakanavaa ja enintään 55 asiakaspaikkaa. Alakerrassa sisärappusin saavutettavissa noin 267,5 m²:n tila, joka voidaan vuokrata erikseen. Kysy lisää Jouko Raitanen Helsinki puh. 0504695444

Perustiedot

Tyyppi:
Liiketila
Sopimustyyppi:
Vuokrataan
Osoite:
Fredrikinkatu 48, 00100 Helsinki
Kaupunginosa:
Keskusta

Linkit

Kartta

Ota yhteyttä

Toimitilavälitys RHG Oy logotyyppi
Jouko Raitanen
Jouko Raitanen
Näytä puhelinnumero

Lähetä yhteydenottopyyntö

Tietosuojaseloste
This site is protected by reCAPTCHA and the Google Privacy Policy and Terms of Service apply.

Tietoa ilmoittajasta

Toimitilavälitys RHG Oy logotyyppi