Uudet käyttö- ja sopimusehdot
Päivitämme käyttö- ja sopimusehtojamme. Uudet ehdot ovat voimassa 1.5.2025 alkaen. Tutustu ehtoihin
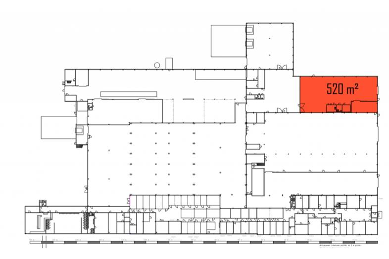
Kaitilantie 30 Orimattila
16300Tyyppi
Tuotantotila
Koko
520 m²
Vuokra
Kysy hintaa!
Vuokrataan tuotanto- tai varastotila 520 m², jossa 3,6 m korkea ja 4,17 m leveä nosto-ovi. Tilan korkeus 5,6 m kattopalkkiin asti. Laaja halli, jossa erillinen n. 50 m²:n kokoinen tila varastoksi tms. Lisäksi pieni toimisto, keittiö ja wc. Tilat juuri remontoitu.
Perustiedot
Tyyppi:
Tuotantotila
Sopimustyyppi:
Vuokrataan
Osoite:
Kaitilantie 30, 16300 Orimattila
Linkit
Kartta
Tietoa ilmoittajasta
Toimitilavälitys RHG Oy
Näytä kaikki saman ilmoittajan kohteetHämeenkatu 2 B20
20500
Turku














