Uudet käyttö- ja sopimusehdot
Päivitämme käyttö- ja sopimusehtojamme. Uudet ehdot ovat voimassa 1.5.2025 alkaen. Tutustu ehtoihin
Vammaksentie 1 Nuupala, Sastamala
38210Tyyppi
Muu
Koko
3 200 m²
Kerros
2 / 2
Myyntihinta
760 000 €
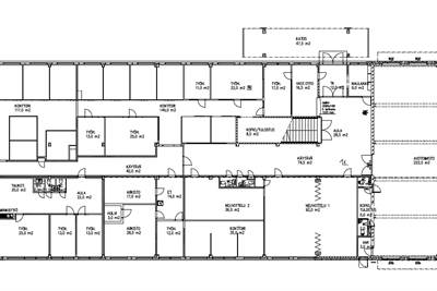
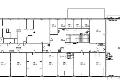
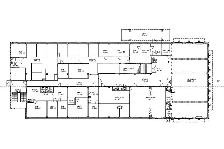
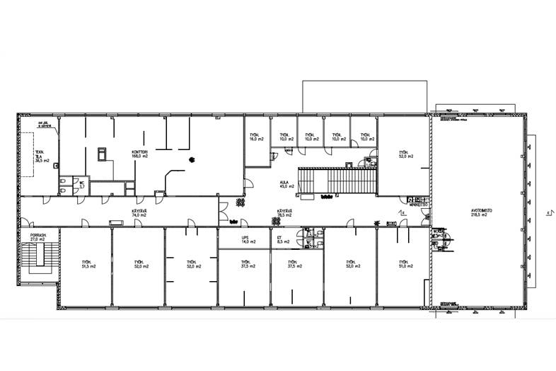
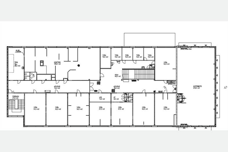
Myytävänä entinen puolustusvoimien esikuntarakennus, jossa on kaksi kerrosta ja kellarikerros. Rakennus on ilmastointijäähdytyksellä, kaukolämmössä ja liitetty kunnan vesi-ja viemäriverkostoon.
Kohde soveltuu muokattavaksi esimerkiksi erilaisten toimitilojen tarpeisiin, hyvinvointi- tai hoivapalvelujen yksiköksi, koulutustusyksiköksi että monimuotoiseen yritystoimintaan tms. Pysäköintialue on asfaltoitu ja muu piha-alue hoidettua nurmikkoa ja istutuksia. Heti vapaa.
Sijainti Sastamalan keskustan palvelujen lähellä ja kantatie 249 vieressä.
Tiedustelut
Pasi Rasku
puh. 0400 171 191
pasi.rasku@muutoslkv.fi
Ari Sointu
puh. 0400 610 828
ari.sointu@muutoslkv.fi
www.muutoslkv.fi
Perustiedot
Tyyppi:
Muu
Sopimustyyppi:
Myydään
Osoite:
Vammaksentie 1, 38210 Sastamala
Kaupunginosa:
Nuupala
Velaton hinta:
760 000 €
Myyntihinta:
760 000 €
Tilan koko
Kokonaispinta-ala:
3200 m²
Rakennustiedot
Rakennusvuosi:
1
Energialuokka:
Kohteelle ei lain mukaan tarvita energiatodistusta.
Lisätiedot
Kerros:
2 / 2
Ympäristö
Lähipalvelut:
Palvelut: Vammalan keskustan palvelut 1- 2 km säteellä.
Liikenneyhteydet:
Hyvät liikenneyhteydet, oma liittymä liikenneympyrästä,
kantatie 249 kulkee vierestä.
Kartta
Tietoa ilmoittajasta
Muutos LKV | Pirkanmaan Laatuvälitys Oy
Näytä kaikki saman ilmoittajan kohteetTampellan Esplanadi 11
33100
Tampere


































































