Uudet käyttö- ja sopimusehdot
Päivitämme käyttö- ja sopimusehtojamme. Uudet ehdot ovat voimassa 1.5.2025 alkaen. Tutustu ehtoihin
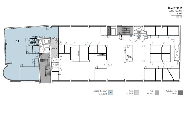
Hämeentie 15 Sörnäinen, Helsinki
00500Tyyppi
Toimisto
Koko
222 m²
Kerros
3
Vuokra
Kysy hintaa!
Toimistotila, jossa on huoneita sekä tiimille että teamsille. Avaruutta tuo myös kaareva erkkeri. Talo sijaitsee erinomaisella paikalla Helsingin Sörnäisissä. Ota yhteyttä ja kysy lisää!
Kiinteistö sijaitsee Sörnäisissä, alle 5 minuutin kävelymatkan päässä metroasemalta. Kiinteistössä on kuntosali, ja autohallissa vuokrattavissa muutama autopaikka.
Lisätietoja numerosta 020 7290 710. Lisää kohteita osoitteessa premises.fi.
Kohteella ei ole lain edellyttämää energiatodistusta tai energialuokka ei tiedossa.
Perustiedot
Tyyppi:
Toimisto
Sopimustyyppi:
Vuokrataan
Osoite:
Hämeentie 15, 00500 Helsinki
Kaupunginosa:
Sörnäinen
Tilan koko
Kokonaispinta-ala:
222 m²
Lisätiedot
Kerros:
3
Ympäristö
Liikenneyhteydet:
Hyvät julkiset kulkuyhteydet, esim. Hakaniemen metroasema kävely etäisyydellä, raitiovaunu- ja linja-autoliikenne Hämeentiellä.
Tietoa ilmoittajasta

CRE PREMISES
Näytä kaikki saman ilmoittajan kohteetVantaankoskentie 14
01670
VANTAA
























