Uudet käyttö- ja sopimusehdot
Päivitämme käyttö- ja sopimusehtojamme. Uudet ehdot ovat voimassa 1.5.2025 alkaen. Tutustu ehtoihin
Sentnerikuja 1 Lassila, Helsinki
00440Tyyppi
Toimisto
Koko
1 564 m²
Kerros
4
Vuokra
Kysy hintaa!
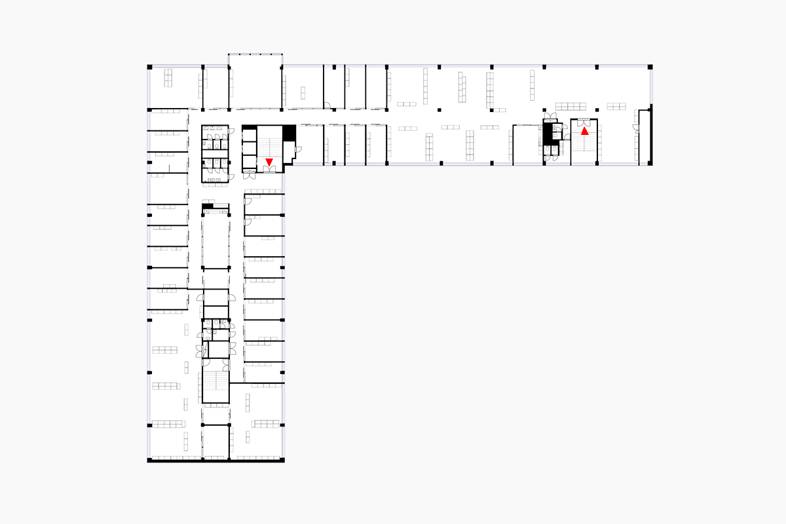
Vuokrataan koko 4. kerroksen 1564 m² toimistohuoneisto Helsingin Lassilassa. Tilat ovat joustavasti muokattavissa, ja myös yhdistettävissä ylemmän kerroksen kanssa.
Kiinteistön pihalla 70 pysäköintipaikkaa. Vieressä on myös pysäköintitalo, josta vuokrattavissa pysäköintipaikkoja. Lisäksi 2-4 tunnin kadunvarsipaikkoja esim. vieraspysäköintiin.
Kiinteistö sijaitsee hyvien liikenneyhteyksien päässä Vihdintien varrella lähellä Kehä I:n liittymää. Pohjois-Haagan juna-asemalle lyhyt kävelymatka.
Perustiedot
Tyyppi:
Toimisto
Sopimustyyppi:
Vuokrataan
Osoite:
Sentnerikuja 1, 00440 Helsinki
Kaupunginosa:
Lassila
Tilan koko
Kokonaispinta-ala:
1564 m²
Rakennustiedot
Kiinteistön nimi:
Sentnerikuja 1
Lisätiedot
Kerros:
4
Kartta
Tietoa ilmoittajasta
Toimitilavuokraus | Retta Management
Näytä kaikki saman ilmoittajan kohteetValimotie 9-11
00380
Helsinki










