Uudet käyttö- ja sopimusehdot
Päivitämme käyttö- ja sopimusehtojamme. Uudet ehdot ovat voimassa 1.5.2025 alkaen. Tutustu ehtoihin
Lautatarhankatu 10 Kalasatama, Helsinki
00580Tyyppi
Toimisto
Koko
799 m²
Kerros
3 / 6
Vuokra
Kysy hintaa!
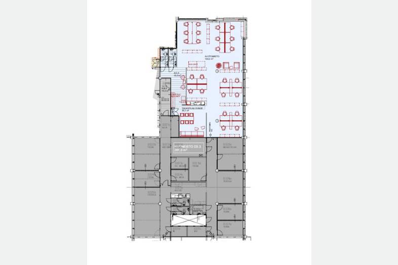
Vuokrataan kaikki nykyajan vaatimukset täyttävää muuntojoustavaa toimistotilaa kehittyvällä Kalasataman alueella. Tämä täysin remontoitu 2019 tila sijaitsee 3. kerroksessa, joka on pääosin avotilaa. Hieno aula ja keittiö, toimivat neukkarit (3x2-4 hlöä), (1x7-8 hlöä), (1x14 hlöä) ja (1x15 hlöä).
Ikkunoista näkymät Suvilahteen ja kiinteistön sisäpihalle. Kiinteistössä on aulapalvelumahdollisuus. Ota yhteyttä ja sovi esittely, palvelumme on tilanhakijoille ilmainen.
TROOLI- moderni toimistokiinteistö, joka sijaitsee mainiolla paikalla Kalasatamassa. Kiinteistössä on suuri auditorio, kuntosali ja kulku sisäkautta lounasravintolaan, jossa toimii myös catering-palvelu.
Sijainti: Kalasatama/Sörnäinen
Perustiedot
Tyyppi:
Toimisto
Sopimustyyppi:
Vuokrataan
Osoite:
Lautatarhankatu 10, 00580 Helsinki
Kaupunginosa:
Kalasatama
Tilan koko
Kokonaispinta-ala:
799 m²
Rakennustiedot
Energialuokka:
F
Lisätiedot
Kerros:
3 / 6
Ympäristö
Pysäköinti:
Kiinteistössä on parkkihalli sekä sisäpihan autopaikkoja.
Liikenneyhteydet:
Kalasataman metroasema sekä linja-autopysäkki ovat aivan kiinteistön vieressä.
Dokumentit
Kartta
Tietoa ilmoittajasta

Senaatin Notariaatti Oy LKV
Näytä kaikki saman ilmoittajan kohteetLämmittäjänkatu 4 A
00880
HELSINKI




































